Ερωτήσεις/ Απαντήσεις - Διακόσμηση, Αρχιτεκτονική, Design, Ανακαίνιση

ΕΡΩΤΗΣΕΙΣ - ΣΥΜΒΟΥΛΕΣ

Ερώτηση αναγνώστριας “Έχω αγοράσει δυο καναπέδες χρώματος γκρι, θα ήθελα να μου προτείνετε χρώμα χαλιού και κουρτίνας για το σαλόνι....(το σαλόνι είναι μικρό και ξέρω ότι το χρώμα χαλιού γκρι θα έκλεινε το χώρο). Σημ.: ο ένας τοίχος του σαλονιού είναι λιλά και οι άλλοι δύο σπασμένο λευκό. Θα εκτιμούσα ιδιαίτερα μια απάντηση, έχω χαθεί!!!” Άννα Η άποψη…
Ερώτηση αναγνώστριας “Tο σπίτι μου είναι 56 τ.μ, και ζούμε 4 άτομα. Έχω ένα χωλ περίπου 10τ.μ που δεν έχει παράθυρα και θέλω να τον κάνω καθιστικό και τραπεζαρία. Τι επιλογές να κάνω σε έπιπλα και σε χρώματα;” Ελένη Η άποψη μας Αναπαραστήσαμε ένα χώρο σύμφωνα με την περιγραφή σας σχετικά με την επιφάνεια του. Υποθέσαμε ότι υπάρχουν…
Ερώτηση αναγνώστη “Ανακαινίζω ένα διαμέρισμα αρχών του 70 στην Πλάκα. Θα ενοποιήσω το χώρο κουζίνας και καθιστικού. Βρίσκομαι στο εξής δίλημμα. Κρατάω την παλιά κουζίνα με το μαρμάρινο νεροχύτη ή την αντικαθιστώ με μια (φτηνή και ουδέτερη) νέα κουζίνα και τη συνδυάζω με μια αγαπημένη βιτρίνα αντίκα να δίνει τον τόνο?” Άρης Η άποψη μας Αναφέρουμε γενικά ότι…
Ερώτηση αναγνώστριας "Θα ήθελα τη συμβουλή σας για τη διαμόρφωση του χώρου μου αλλά και τα χρώματα. Οι διαστάσεις είναι 3,10 πλάτος και 4,10 μήκος. Στην μία πλευρά του μήκους υπάρχει παράθυρο(με καλοριφέρ)και μπαλκονόπορτα(συνεχίζει η κουζίνα) ενώ στην άλλη πλευρά μόνο η είσοδος που είναι στην αρχή του τοίχου (αριστερά κουζίνα). Όσον αφορά το πλάτος ο ένας τοίχος…
Ερώτηση αναγνώστριας “Στο μικρό μπάνιο διαστάσεις 2μ μάκρος επί 1.20μ πλάτος θέλω να κάνω μια αποθηκούλα για την σκούπα, τη σιδερώστρα και τον κουβά και ραφάκια. Μια λεκάνη τουαλέτας κρεμαστή και έναν νιπτήρα επιτοίχιο. Στο τέλος του μπάνιου στο μάκρος έχει παράθυρο. Θέλω να μου πείτε πως να τα βολέψω χωρίς να μου κλείνει η αποθήκη το παράθυρο.…
Ερώτηση αναγνώστη “Καλησπέρα ανακαινίζω το σαλόνι οι τοίχοι είναι ώχρα, το ταβάνι λευκό στο πάτωμα πλακάκι λευκό με μαύρες γραμμές ενιαίος χώρος σαλονιού και κουζίνας μικρός 50 τμ. Πάσο, ντουλάπια κουζίνας και σύνθετο και τραπεζαρία τα κρατάω και είναι καφέ γλυκό. Ερώτημα τι κουρτίνες σαλόνι τραπεζάκι να βάλω σε τι αποχρώσεις? Επίσης έχω δύο πίνακες μεγάλους σε έντονα…
Ερώτηση αναγνώστριας “Η ερώτηση μου αφορά το σαλόνι. Σκέφτομαι να κάνω γκρι σκούρο καναπέ αλλά θα ήθελα να μου προτείνετε χρώματα για το τραπεζάκι του σαλονιού όπως επίσης και για τη σύνθεση που θα βάλω την τηλεόραση. Γενικά δε μου αρέσει το καφέ και όποιο άλλο χρώμα φέρνει προς το καφέ. Θα ήθελα να επισημάνω ότι με ενδιαφέρει…
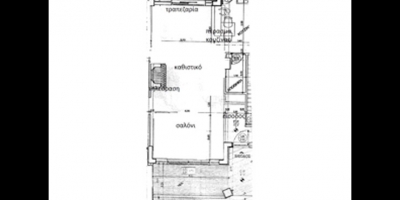
Ερώτηση αναγνώστριας “Θα ήθελα να μου πείτε την γνώμη σας που για μένα μετράει πολύ. Σας επισυνάπτω την κάτοψη του σπιτιού μου και με τα έπιπλά που σκέφτηκα να βάλω. Θα ήθελα να μου πείτε αρχικά αν είναι σωστά τοποθετημένα αν όχι να δώσετε σωστή λύση ή να τα αντικαταστήσετε με άλλα. Δεύτερον και πιο σημαντικό να μου…
Ερώτηση αναγνώστριας “Βρίσκομαι στο στάδιο επιλογής- αγοράς επίπλων. Το θέμα είναι ότι ο ενιαίος χώρος, σαλόνι, καθιστικό και τραπεζαρία, είναι μακρόστενος και η τοποθέτηση των επίπλων είναι δύσκολη. Στέλνω μια κάτοψη του χώρου, ελπίζω να φανεί χρήσιμη! Θα ήθελα την βοήθειά σας ούτως ώστε να δημιουργηθεί ένας λειτουργικός και καλαίσθητος χώρος. Σκέφτομαι μπροστά από το μεγάλο παράθυρο να…
Ερώτηση αναγνώστριας "Παρακαλώ δώστε μου μια συμβουλή για να αλλάξω το σπίτι μου που τόσο έχω βαρεθεί!!!!! Έχω κόκκινο καναπέ και βέγκε έπιπλα το πλέον συνηθισμένο.... και θέλω να κάνω λίγο την διαφορά με το χρώμα του τοίχου ώστε να αλλάξει και η διάθεση μας! Τι χρώμα άραγε ταιριάζει? Οι κουρτίνες είναι εκρού! Ευχαριστώ πάρα πολύ!" Τάνια Η…
Ερώτηση αναγνώστριας “Πρόκειται να ανακαινίσω την κουζίνα μου και θα κάνω πολλές διορθωτικές κινήσεις. Σε γενικές γραμμές έχω καταλήξει. Όμως έχει δημιουργηθεί ένα σχεδόν ορθογώνιο δωματιάκι (οι τέσσερις πλευρές:124*126*122*126 cm (ανοιγμα). Σκεφτόμουν να γίνει αποθήκη τροφίμων όμως περνούν από τη μια γωνία εξωτερικοί σωλήνες καλοριφέρ (κεντρική θέρμανση) και από την άλλη είναι μεσοτοιχία με το φρεάτιο του ασανσέρ.…
Ερώτηση αναγνώστριας “Παρακαλώ για την βοήθεια σας. Όλα τα έπιπλα που έχω είναι σκούρο καφέ σε απλή γραμμή. Τι χρώμα θα ταίριαζε να βάψω τους τοίχους και με τι χρώμα κουρτίνες και χαλί να τα συνδυάσω? Τώρα όλα είναι σε καφέ-μπεζ και θα ήθελα λίγο χρώμα.” Στέλλα Η άποψη μας Καταρχήν τα σκούρα έπιπλα δίνουν στο σπίτι ένα…

Decobook.gr

© Copyright 2010 - DecoBook. All Rights Reserved