Ερώτηση αναγνώστριας
“Θα ήθελα να μου πείτε την γνώμη σας που για μένα μετράει πολύ. Σας επισυνάπτω την κάτοψη του σπιτιού μου και με τα έπιπλά που σκέφτηκα να βάλω. Θα ήθελα να μου πείτε αρχικά αν είναι σωστά τοποθετημένα αν όχι να δώσετε σωστή λύση ή να τα αντικαταστήσετε με άλλα.
Δεύτερον και πιο σημαντικό να μου πείτε λύσεις για τον χώρο εισόδου - γραφείο. Επέλεξα να βάλω γραφείο γιατί περνάμε ώρες στον υπολογιστή και δεν θέλουμε να κλειστούμε σε δωμάτιο. Αν εσείς δεν το θεωρείτε σωστό πείτε μου άλλη λύση ή βάλτε το μου σε σωστή διάταξη. Σας ευχαριστώ εκ των προτέρων." Δήμητρα
Η άποψη μας
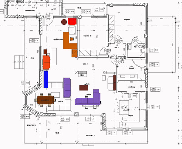
Αρχικά συμφωνούμε για την τοποθέτηση του γραφείου στον ευρύχωρο ενιαίο χώρο και όχι σε δωμάτιο. Προτείνουμε μια νέα χωροθέτηση για την περιοχή της εισόδου και του καθιστικού σας.
1. Είσοδος-Γραφείο
Προτείνουμε το γραφείο να τοποθετηθεί απέναντι από την μπαλκονόπορτα για να έχετε επαφή με τον περιβάλλοντα χώρο, καθώς η μορφή της κάτοψης που μας στείλατε παραπέμπει σε κτίριο που περιβάλλεται από ακάλυπτο χώρο και πιθανόν και με πράσινο. Διατηρούμε την πολυθρόνα και το τραπέζι της εισόδου.
Απέναντι από το γραφείο τοποθετούμε το διθέσιο καναπέ.
2. Καθιστικό- Τραπεζαρία
Το τζάκι σας βρίσκεται σε κεντρική και δεσπόζουσα θέση στο καθιστικό σας. πρέπει λοιπόν το καθιστικό με τους καναπέδες να αναπτυχθεί γύρω από αυτό για να απολαμβάνετε τη θαλπωρή του και να αναδείξετε το καθιστικό σας σαν κεντρικό σημείο συνάντησης στο σπίτι.
Το έπιπλο TV τοποθετείται απέναντι από το καθιστικό και με τον τρόπο αυτό επιτυγχάνουμε να παρακολουθείτε τηλεόραση και συγχρόνως να απολαμβάνετε το τζάκι.
Η τραπεζαρία τοποθετείται στην πλέον κατάλληλη θέση, την πολυγωνική περιοχή του χώρου με τα αντικριστά παράθυρα, σε διακριτική, αλλά συγχρόνως εποπτική θέση, καθώς “βλέπει” ολόκληρο το σαλόνι και την κουζίνα.
Βέβαια έχει απομακρυνθεί ελαφρά από την κουζίνα, αλλά ο νοητός διάδρομος πίσω από τον καναπέ κατά μήκος των ανοιγμάτων του σαλονιού αποτελεί ευχάριστη διαδρομή.

3. Μπλε περιοχή
Τέλος για την περιοχή που σημειώνεται με μπλε χρώμα υπάρχουν διάφορες εναλλακτικές λύσεις, ανάλογα με το ύφος διακόσμησης του χώρου και τις προτιμήσεις σας.
Μπορείτε να τοποθετήσετε κάποιο έπιπλο bar με σκαμπό, καθώς βρίσκεται κοντά στην τραπεζαρία ή επίσης μπουφέ ή βιτρίνα. Μπορείτε ακόμη να τον αφήσετε ελεύθερο και να κρεμάσετε ένα μεγάλο έργο τέχνης.


