Ερώτηση αναγνώστη:
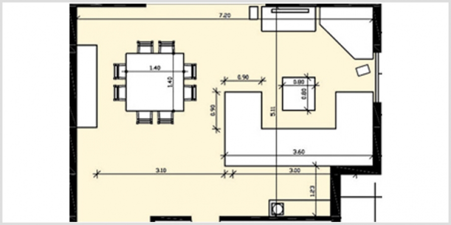
Ο κ. Σπύρος ζήτησε τη συμβουλή μας, για τη διαρρύθμιση του καθιστικού και της τραπεζαρίας σε ενιαίο χώρο στο διαμέρισμα του. Μας έστειλε την κάτοψη του σπιτιού του καθώς και ένα link με έπιπλα προκειμένου να πάρουμε μια ιδέα για τις προτιμήσεις.
Η απάντηση μας:
Προτείνουμε δυο λύσεις διαρρύθμισης των επίπλων, οι οποίες διαφέρουν μεταξύ τους, μόνο ως προς την τοποθέτηση ενός διαχωριστικού επίπλου, που μπορεί για παράδειγμα να είναι ένα σύνθετο, μια βιβλιοθήκη ή μια σκευοθήκη.
1η λύση
Στην πρώτη λύση, προτείνουμε την τοποθέτηση ενός σύνθετου (ή ακόμα και μιας βιβλιοθήκης) στη μέση περίπου του χώρου, που θα λειτουργεί ως διαχωριστικό και θα δημιουργεί ένα νοητό χώρο εισόδου από το σπίτι προς το καθιστικό και την τραπεζαρία.

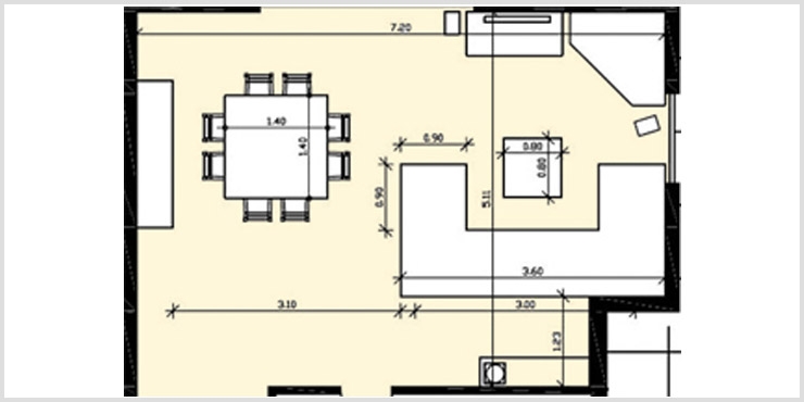
2η λύση
Η δεύτερη λύση αφορά μια περισσότερο κλασσική πρόταση για τη θέση του επίπλου αυτού (που μπορεί να είναι ένας μπουφές). Σύμφωνα με την πρόταση αυτή, το σύνθετο μπορεί να τοποθετηθεί με την πλάτη στον ένα τοίχο και μπροστά του να αναπτυχθεί ο χώρος της τραπεζαρίας.



