Ερώτηση αναγνώστριας
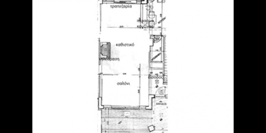
“Βρίσκομαι στο στάδιο επιλογής- αγοράς επίπλων. Το θέμα είναι ότι ο ενιαίος χώρος, σαλόνι, καθιστικό και τραπεζαρία, είναι μακρόστενος και η τοποθέτηση των επίπλων είναι δύσκολη. Στέλνω μια κάτοψη του χώρου, ελπίζω να φανεί χρήσιμη! Θα ήθελα την βοήθειά σας ούτως ώστε να δημιουργηθεί ένας λειτουργικός και καλαίσθητος χώρος.
Σκέφτομαι μπροστά από το μεγάλο παράθυρο να μπει ένας τριθέσιος καναπές με δύο πολυθρόνες. Μπροστά από το τζάκι θα ήθελα έναν γωνιακό καναπέ, απέναντι από την τηλεόραση, που θα μπει δίπλα στο τζάκι, αριστερά και ίσως ένα ταμπουρέ, αλλά κλείνει ο χώρος και δεν θα υπάρχει πέρασμα για την κουζίνα... Ο χώρος της τραπεζαρίας είναι ο πιο εύκολος. Ευχαριστώ και περιμένω με ανυπομονησία την απάντησή σας!”
Ελένη
Η άποψη μας
Προτείνουμε δύο εναλλακτικές λύσεις οργάνωσης του χώρου σας, που διαφοροποιούνται στη θέση των επίπλων στο σαλόνι σας, ενώ το καθιστικό και η τραπεζαρία έχουν τη χωροθέτηση των επίπλων ίδια και στις δύο περιπτώσεις.
Α. Ο τριθέσιος καναπές τοποθετείται κάθετα στην μπαλκονόπορτα και απέναντι του τοποθετούνται οι δύο πολυθρόνες. Στην κάτοψη που μας στείλατε διακρίναμε κάποιο τοιχάκι μεταξύ εισόδου και σαλονιού, ίσως χαμηλό, οπότε μπορεί άνετα να τοποθετηθεί εκεί ο τριθέσιος.
Αυτή η θέση του καναπέ ενοποιεί το σαλόνι με τον υπόλοιπο χώρο, είναι δυνατή η παρακολούθηση τηλεόρασης από τον καναπέ και από τη θέση του γωνιακού καναπέ μπροστά από το τζάκι μπορεί κανείς να βλέπει τον εξωτερικό χώρο από το μεγάλο παράθυρο.
Β. Ο τριθέσιος καναπές τοποθετείται απέναντι από το παράθυρο και σε γωνία τοποθετούνται οι δύο πολυθρόνες. Στην πρόταση αυτή το σαλόνι απομονώνεται από τον υπόλοιπο χώρο.
Απέναντι από το τζάκι τοποθετείται γωνιακός καναπές με ταμπουρέ και στο βάθος τοποθετείται η τραπεζαρία.
Οι νοητοί διάδρομοι κυκλοφορίας στο χώρο έχουν πλάτος 80-90εκ. περίπου, που είναι αρκετό για άνετη κυκλοφορία. Άλλωστε ορίζονται από κινητά έπιπλα και όχι τοίχους, οπότε μπορούν να διευρυνθούν όταν υπάρχει ανάγκη πλατύτερου διαδρόμου.











