Ερώτηση αναγνώστη
“Θα ήθελα παρακαλώ τη συμβουλή σας στην αλλαγή που θέλω να κάνω στο καθιστικό - σαλόνι μου. Οι διαστάσεις 3,80χ 5,80 η μια πλευρά (η μικρότερη έχει μπαλκονόπορτα στο μέσον και παράθυρο από κάθε πλευρά). Απέναντι από αυτή στην δεξιά γωνία υπάρχει τζάκι και στη συνέχεια προς τα δεξιά 2μ τοίχος (άνοιγμα 2,50) από την κουζίνα και απέναντι από αυτό ένα παράθυρο που είναι συνεχόμενο μετά προηγούμενα που ανέφερα. Θα ήθελα να τοποθετηθούν γωνιακός καναπές, έπιπλο-σύνθετο ή ότι άλλο νομίζετε και με τι χρώματα;” Στέλιος
Η άποψη μας
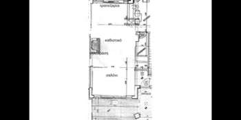
Χωροθέτηση επίπλων
Διαμορφώσαμε ένα χώρο σύμφωνα με την περιγραφή σας για τη χωροθέτηση των επίπλων μέσα σ’ αυτό. Οι διαστάσεις των ανοιγμάτων είναι κατά προσέγγιση, όπως επίσης και το μέγεθος του τζακιού.
Στην 1η λύση τοποθετούμε το γωνιακό καναπέ απέναντι από το τζάκι με το ένα σκέλος να βλέπει τα ανοίγματα και μέσα από αυτά τη θέα. Στον τοίχο δίπλα από το τζάκι προτείνουμε το σύνθετο με την TV.


Στη 2η λύση τοποθετούμε το γωνιακό καναπέ με την πλάτη στα ανοίγματα απέναντι από το τζάκι και στη στενή πλευρά τοποθετούμε το σύνθετο και την TV.


Επειδή τα ανοίγματα είναι τοποθετημένα συμμετρικά ως προς τη στενή πλευρά, προτείνουμε επίσης συμμετρική τοποθέτηση επίπλων κάτω από τα παράθυρα.
Τα έπιπλα αυτά μπορούν να είναι είτε δύο τραπεζάκια, είτε δύο χαμηλές βιβλιοθήκες, είτε δύο συρταριέρες. Μπροστά από την μπαλκονόπορτα μπορείτε να τοποθετήσετε δύο πολυθρόνες με ένα τραπεζάκι, ή ένα ταμπουρέ, που μπορούν εναλλακτικά να μετακινηθούν κοντά στο τζάκι και να αυξήσουν τον αριθμό των θέσεων του καθιστικού.


Χρωματικό σχήμα
Δεν έχουμε καμία πληροφόρηση για τα χρώματα και τα υλικά στο χώρο, όπως π.χ τι είδους είναι τα κουφώματα, τι δάπεδο υπάρχει και επίσης αν πρόκειται να βάψετε τους τοίχους, ώστε να προτείνουμε κάποιο αρμονικό χρωματικό σχήμα.
Θα αρκεστούμε λοιπόν να προτείνουμε κάποιους αρμονικούς χρωματικούς συνδυασμούς.
Για τους τοίχους προτείνουμε ένα λευκό-μπεζ με ίχνη κόκκινου, για το τζάκι το χρώμα βάσκας (teal). Για τα υφάσματα προτείνουμε αποχρώσεις τάουπε, σκούρου μπεζ και για τα ξύλα το καρυδί σε συνδυασμό με λευκή λάκα. Τα υφάσματα μπορούν να είναι μονόχρωμα ή ριγέ σε αποχρώσεις των παραπάνω χρωμάτων. Οι συνδυασμοί αυτοί ‘δένουν’ και με ξύλινο πάτωμα και με δάπεδο πλακιδίων ανάλογης απόχρωσης.

