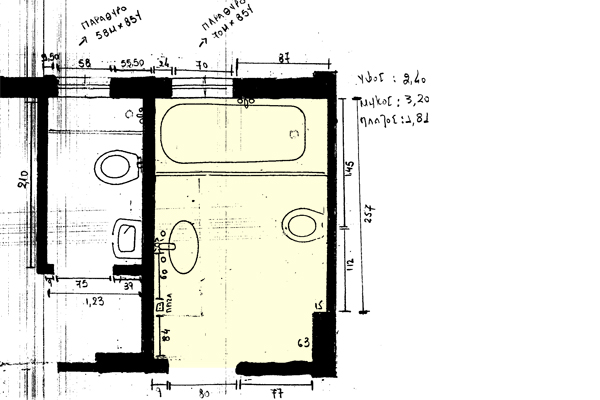
Η κάτοψη του μπάνιου

Η απάντησή μας:
Η χωροθέτηση των ειδών υγιεινής αποτελεί σημαντικό παράγοντα για τη λειτουργικότητα ενός μπάνιου. Κατά τη χωροθέτηση λαμβάνονται υπόψη το σχήμα της κάτοψης και οι διαστάσεις του χώρου, στοιχεία που καθορίζουν την επιλογή των διαστάσεων των ειδών υγιεινής.
Το συγκεκριμένο μπάνιο έχει έντονα παραλληλόγραμμο σχήμα και σχετικά μεγάλο μέγεθος.
Ως εκ τούτου, η μπανιέρα πρέπει να τοποθετηθεί κατά πλάτος του μπάνιου για να “μειωθεί” οπτικά η ένταση της μεγάλης διάστασης. Επίσης για να εξασφαλιστεί ο απαιτούμενος ελεύθερος χώρος μπροστά από κάθε είδος υγιεινής, πρέπει η λεκάνη WC και το έπιπλο του νιπτήρα να τοποθετηθούν στην ίδια πλευρά, στην οποία υπάρχει και η αναμονή της αποχέτευσης.

Στον τοίχο πίσω από την μπανιέρα μπορούμε να δημιουργήσουμε μια κατασκευή με ανθυγρή γυψοσανίδα ή τσιμεντοσανίδα, στην οποία θα υπάρχουν δύο εσοχές, μία για το υπάρχον παράθυρο και μια πάνω από την μπανιέρα που θα λειτουργεί ως ράφι.
Ο χώρος της μπανιέρας χωρίζεται από τον υπόλοιπο χώρο με ένα γυάλινο διαχωριστικό (διαφανές ή αμμοβολής με σχέδια) μέχρι περίπου το μισό πλάτος του μπάνιου.

Κατά μήκος της δεξιάς επιμήκους πλευράς τοποθετούνται η κρεμαστή λεκάνη με το εντοιχιζόμενο καζανάκι, το έπιπλο του νιπτήρα και μία στήλη αποθήκευσης (επίσης κρεμαστά). Τα κρεμαστά είδη υγιεινής δημιουργούν αίσθημα ευρυχωρίας και είναι εύκολος ο καθαρισμός του δαπέδου του μπάνιου.
Απαιτείται μία κατασκευή με ανθυγρή γυψοσανίδα για να καλύψει το εντοιχιζόμενο καζανάκι με τη μόνωση για τη μείωση του θορύβου και το στοιχείο στήριξης της κρεμαστής λεκάνης. Η κατασκευή μπορεί να καλύπτει ολόκληρο τον τοίχο και να δημιουργεί μία ακόμη εσοχή μεταξύ του νιπτήρα και του καθρέπτη, η οποία λειτουργεί ως ράφι.

Το ύψος του μπάνιου (2,40μ) επιτρέπει τη δυνατότητα κατασκευής κρεμαστής ψευδοροφής κατά 10εκ., η οποία απέχει 10εκ. από τους περιμετρικούς τοίχους και προσφέρει δυνατότητα κρυφού φωτισμού αυξομειούμενης έντασης για δημιουργία της κατάλληλης εκάστοτε ατμόσφαιρας.
Το σχήμα του μπάνιου σε συνδυασμό με τη χωροθέτηση των ειδών υγιεινής δεν προσφέρεται για διαμόρφωση επιπέδων στο δάπεδο.

Τι γίνεται αν δεν μπορούν να αλλάξουν θέση τα είδη υγιεινής:
Σε περίπτωση που η θέση των ειδών υγιεινής, η οποία φαίνεται στην κάτοψη που στείλατε είναι δεσμευτική, η πρόταση μας περιορίζεται στην επιλογή ελαφρών διαμορφώσεων για να διατηρηθεί το αίσθημα ευρυχωρίας στο μπάνιο.
Συγκεκριμένα, η περιοχή της μπανιέρας οργανώνεται όπως και προηγούμενα. Στον αριστερό τοίχο τοποθετείται η κρεμαστή λεκάνη WC με το εντοιχιζόμενο καζανάκι και η κρεμαστή στήλη αποθήκευσης. Απέναντι ο νιπτήρας επικάθεται σε βάση μικρού πάχους επενδυμένη με πλακίδια και πίσω υψώνεται καθρέπτης ορθογώνιου σχήματος.
Η χωροθέτηση αυτή μειονεκτεί, διότι αφήνεται μικρός ελεύθερος χώρος μπροστά από τα είδη υγιεινής στο κατά τα λοιπά ευρύχωρο μπάνιο.

Ερώτηση αναγνώστριας: