
Δημιουργώντας μια άλλη προοπτική στο διαμέρισμα των 45 τμ, τα όρια του χώρου δεν εμπόδισαν την ικανοποίηση των αναγκών και των δραστηριοτήτων του πελάτη, ενώ παράλληλα του προσφέρουν τη δυνατότητα να απολαύσει και να χαλαρώσει στο λειτουργικό χώρο που κυριαρχούν τα φυσικά υλικά και χρώματα.
Η θαλπωρή και το φως αποτελούν το κύριο στοιχείο σύνθεσης αυτού του διαμερίσματος.
Περιγραφή του Έργου

Το διαμέρισμα σχεδιάστηκε για να βελτιστοποιήσει τη λειτουργία του κάθε τμήματος, όπως τη λειτουργία του χώρου, τα υλικά των διαχωριστικών και την επίπλωση, ώστε να ικανοποιούνται όλες οι δραστηριότητες του πελάτη, που ζει μόνος, είναι επιχειρηματίας και ταξιδεύει πολύ.


Με βάση τις επιθυμίες και τις ανάγκες του, οι ιδιαιτερότητες στο διαμέρισμα είναι η κουζίνα χωρίς φούρνο και απορροφητήρα και η αντικατάσταση του τοίχου του μπάνιου με διαχωριστικό από διάφανο γυαλί με ρόλλερ αδιαφανές για προστασία της ιδιωτικότητας των επισκεπτών.



Ένας καθρέφτης χωρίς πλαίσιο στον τοίχο της τραπεζαρίας διπλασιάζει οπτικά το χώρο και το τραπέζι της τραπεζαρίας είναι αναρτημένο με κατασκευή από χάλυβα, που είναι κρυμμένη στο πίσω μέρος του καθρέφτη.

Η τραπεζαρία έχει σχεδιαστεί για να αποτελεί το αγαπημένο δωμάτιο του πελάτη, εκεί ψυχαγωγεί τους επισκέπτες του και συνδυάζεται με ένα μικρό καθιστικό.

Αυτή η περιοχή συνδέεται με την κρεβατοκάμαρα με μια κρυφή συρόμενη πόρτα, που απομονώνει το χώρο. Κατά μήκος του διαδρόμου προς το υπνοδωμάτιο, προβλέπεται ντουλάπα με συρόμενη πόρτα από καθρέφτη για να εξαλείψει τη στενότητα του χώρου.


Χρωματικά υπάρχει ο κομψός συνδυασμός καπλαμά λευκής δρυός στις επενδύσεις των τοίχων και του σφενδάμου και λευκού χρώματος στα εντοιχισμένα έπιπλα.

Για το δάπεδο επιλέγεται παρκέτο σφενδάμου, που συνδυάζεται με το δάπεδο από εμφανές μπετόν στο διάδρομο της κρεβατοκάμαρας.

Η οροφή είναι σχεδιασμένη με 2 επίπεδα, βαμμένα με αντίθεση μαύρου και λευκού χρώματος, ώστε να προβληθεί η κρεμαστή ψευδοροφή, και να τονιστεί με φως φθορισμού.


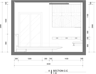
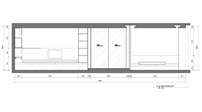
Τα σχέδια του έργου




Συντελεστές του έργου
- Εταιρεία: Chrystalline Artchitect
 - Διευθυντής: κ. Christophorus Jauhari
 - Ομάδα σχεδιασμού: Febrian Α. Wijaya, Nelly Candra
 - Διαχειριστής έργου: Anthony Candra
 - Στατική μελέτη: Erna Bong
 - Ηλεκτρομηχανολογική μελέτη: Denny Triwijaya ( HB Mechanical )
 - Σχεδιασμός φωτισμού: Chrystalline Artchitect
 - Εμβαδόν: 45 τ.μ.
 - Τοποθεσία: Τζακάρτα, Ινδονησία
 - Κατασκευαστής: CDP, pt.
 - Φωτογράφος: William Sebastian
 - Υλικά: Τοίχοι: καθρέφτης, εμφανές μπετόν, λωρίδες ξύλου
 - Δάπεδα: παρκέτα σφενδάμου, εμφανές μπετόν
 - Οροφή: σε δύο επίπεδα βαμμένη λευκή και μαύρη
 
