Περιγραφή του έργου

Με εμβατικό σχεδιασμό και κατασκευασμένο μέσα από πολύ καθαρή και απλή λεπτομέρεια, κινείται σε επιλογές φυσικών υλικών και χρωμάτων, φέρνει τον πελάτη σε μια διαφορετική εμπειρία χαλάρωσης. Μπορεί να μοιάζει με κομμωτήριο, αλλά το Ηairu είναι η φροντίδα για την υγεία των μαλλιών, όπως θεραπεία για την απώλεια των μαλλιών, spa μαλλιών και μασάζ.



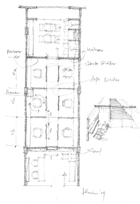
Το εντυπωσιακό στοιχείο του χώρου είναι οι δύο αντικριστοί τοίχοι από ακατέργαστη μπαλινέζικη πέτρα, η οποία υπάρχει επίσης στην πόρτα που οδηγεί στο χώρο λουσίματος.

Ο καθρέπτης σε σχήμα κορδέλας και στους δύο τοίχους είναι ορατός από το σύνολο του χώρου, με τον πελάτη να έχει ιδιωτική θέα, χωρίς όμως οπτική επαφή με τα μάτια του θεραπευτή.
Το μαλακό υλικό, η ημιδιάφανη κουρτίνα, λειτουργεί σαν διαχωριστικό που μπορεί να μετακινηθεί για την επαφή του πελάτη με τους διπλανούς του. Και το σκληρό υλικό, το βαμβάκι, λειτουργεί σαν μόνιμο διαχωριστικό από τον κύριο διάδρομο.




Τα σχέδια του έργου







Συντελεστές του έργου
- Εταιρεία: Chrystalline Artchitect
- Διευθυντής: κ. Christophorus Jauhari
- Ομάδα σχεδιασμού: Febrian Α. Wijaya, Nelly Candra
- Σχεδιασμός φωτισμού: Chrystalline Artchitect
- Εμβαδόν: 70 τ.μ.Τοποθεσία: Τζακάρτα, Ινδονησία
- Κατασκευαστής: Dwitunggal mandirijaya, pt.
- Φωτογράφος: Sebastian William
- Υλικά: Τοίχοι: ανδεσίτης λίθος, καθρέφτης σε σχήμα κορδέλας
- Δάπεδα: παρκέτα, πλακάκια από γρανίτη
- Οροφή: εμφανής οροφή βαμμένη μαύρη με ξύλινες διαδοκίδες
