Ακολουθεί οδηγός διαστασιολογημένων κατόψεων για λουτρά και WC.
ΚΑΤΟΨΕΙΣ
Α' περίπτωση: WC και ΝΙΠΤΗΡΑΣ
Διάταξη κατάλληλη για εστιατόρια, καφετέριες, εμπορικά κέντρα, δημόσιες τουαλέτες, κλπ. Στην κατοικία, είναι κατάλληλη για το WC των επισκεπτών.


Β' περίπτωση: ΝΤΟΥΖΙΕΡΑ
Διάταξη κατάλληλη για καμπινγκ, όπου οι ντουζιέρες είναι ανεξάρτητες απο τα wc. Στην κατοικία μπορεί να χρησιμοποιηθεί ως ανεξάρτητη καμπίνα ντουζ, όπου σε διπλανό δωμάτιο υπάρχει το WC. Ετσι, όταν κάποιος ένοικος χρησιμοποιεί το ντουζ, το WC παραμένει ελεύθερο και αντίστροφα.

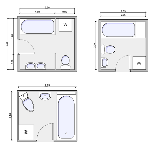
Γ' περίπτωση: ΝΤΟΥΖΙΕΡΑ, ΝΙΠΤΗΡΑΣ ΚΑΙ WC
Διάταξη κατάλληλη για κατοικίες με περιορισμένο χώρο, για ξενοδοχεία, ξενώνες, κλπ.


Δ' περίπτωση: ΜΠΑΝΙΕΡΑ, ΝΙΠΤΗΡΑΣ ΚΑΙ WC
Διάταξη κατάλληλη για ευρύχωρες κατοικίες.



Ε' περίπτωση: ΣΥΝΔΥΑΣΜΟΙ
Διάταξεις με ανεξάρτητες μονάδες WC, λουτρού, κλπ. Κατάλληλες για ευρύχωρες κατοικίες και για κατοικίες με πολλούς ενοίκους

ΣΤ' περίπτωση: ΜΠΑΝΙΕΡΑ, ΠΛΥΝΤΗΡΙΟ, ΝΙΠΤΗΡΑΣ ΚΑΙ WC
Διάταξη που περιλαμβάνει τη συσκευή του πλυντηρίου. Κατάλληλη για κατοικίες.

Γενικές οδηγίες για το σχεδιασμό μπάνιων.
- Ο προσανατολισμός των λουτρών πρέπει να είναι κατά κανόνα προς το βορρά
 - Η ιδανικότερη κάτοψη θα πρέπει να εξασφαλίζει φυσικό φωτισμό και αερισμό
 - Σε πολυώροφα κτίρια τα λουτρά και τα wc πρέπει να τοποθετούνται έτσι ώστε να δημιουργούν μια κατακόρυφη στήλη εγκαταστάσεων. Με αυτόν τον τρόπο γίνεται οικονομία στις εγκαταστάσεις.
 - Δυο γειτονικά λουτρά, τα οποία ανήκουν σε διαφορετικά διαμερίσματα δεν πρέπει να συνδέονται με τις ίδιες εγκαταστάσεις ύδρευσης και αποχέτευσης.
 - Το λουτρό είναι χώρος με μεγάλη υγρασία. Οπότε, οι επιφάνειες του χώρου θα πρέπει να επενδύονται από υλικά που καθαρίζονται εύκολα.
 - Το δάπεδο θα πρέπει να είναι αντιολισθητικό
 - Στο χώρο θα πρέπει να υπάρχει τουλάχιστον μια πρίζα Schuko
 
Εκτός από τα βασικά είδη υγιεινής, τα λουτρά μπορεί να περιλαμβάνουν:
- Ντουλάπια και ερμάρια για πετσέτες
 - Ντουλάπια και ερμάρια για απορρυπαντικά και εργαλεία καθαρισμού
 - Καλάθι για άπλυτα ρούχα
 - Καθρέπτη
 - Ντουλάπια και ράφια για είδη προσωπική περιποίησης
 - Θερμαντικό σώμα
 

                
                
                
                                






                
                                


