Η οργάνωση του παιδικού δωματίου είναι μια διαδικασία που θέλει σκέψη, πειραματισμούς και πολύ έρευνα αγοράς. Συνήθως ένα παιδί χρειάζεται αρκετό αποθηκευτικό χώρο για τα παιχνίδια, τα βιβλία, τα σχολικά είδη και τα ρούχα του. Το παιδικό δωμάτιο πρέπει να είναι πολυ-λειτουργικό, καθώς το παιδί εκτός από υπνο, χρησιμοποιεί το χώρο του για χειροτεχνίες και ζωγραφική, για παιχνίδι, για διάβασμα, κτλ.
Παρακάτω παρουσιάζονται μερικές τυπικές κατόψεις παιδικών (ή εφηβικών) δωματίων για ένα χρήστη, δηλαδή με ένα κρεβάτι. Οι διαστάσεις των δωματίων είναι ενδεικτικές και θα πρέπει να γνωρίζετε ότι σημαντικό ρόλο στη διαρρύθμιση παίζει η θέση της πόρτας και των παραθύρων.
Ελεύθεροι χώροι γύρω από τα έπιπλα: Γύρω από το κρεβάτι πρέπει να παραμένει ελεύθερος χώρος περίπου 66 cm, ιδανικά 75 cm. Ο ελεύθερος χώρος είναι απαραίτητος, για το έυκολο στρώσιμο του κρεβατιού και για την άνετη κίνηση στο χώρο. Αν υπάρχει ντουλάπα, παράλληλα τοποθετημένη στο κρεβάτι θα πρέπει να προβλέπεται ελεύθερο χώρος 90 περίπου cm, μπροστά από την ντουλάπα. Σε περίπτωση συρταριέρας ο ελεύθερο χώρος πρέπει να είναι περίπου 120-148cm (εξαρτάται από το βάθος της συρταριέρας).
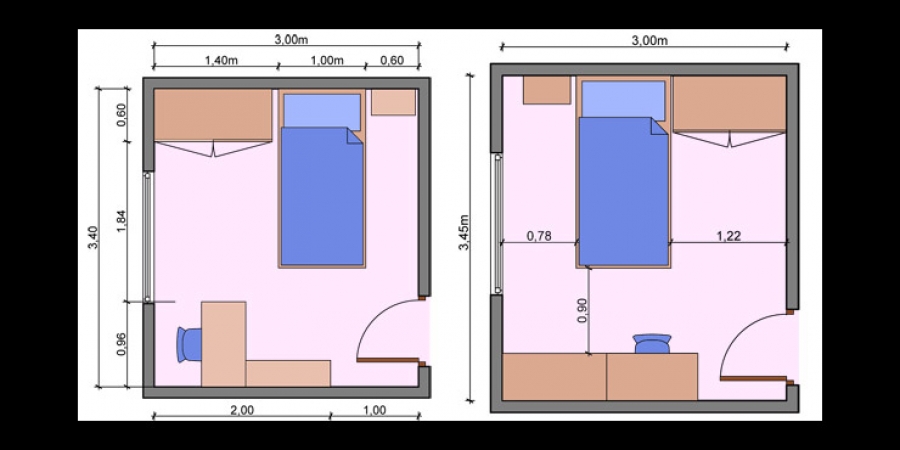
Υπνοδωμάτιο με μικρές διαστάσεις

Το υπνοδωμάτιο εξοπλίστηκε με τα απολύτως απαραίτητα έπιπλα (κρεβάτι, ντουλάπα, γραφείο). Η λύση θα μπορούσε να εφαρμοστεί σε παιδικό, εφηβικό αλλά και σε φοιτητικό δωμάτιο. Το πλεονέκτημα της διαρρύθμισης είναι η τρίφυλλη ντουλάπα που προσφέρει μεγάλο αποθηκευτικό χώρο.

Το δωμάτιο διαθέτει τα απολύτως απαραίτητα έπιπλα (κρεβάτι, γραφείο, ντουλάπα). Η ντουλάπα τοποθετήθηκε σε εσοχή στον τοίχο.

Δωμάτιο μικρών διαστάσεων με μονό κρεβάτι, κομοδίνο, γραφείο και ντουλάπα. Η συγκεκριμένη διαρρύθμιση είναι δυνατή επειδή η πόρτα εισόδου βρίσκεται στη μέση του τοίχου και αφήνει ελεύθερες τις δύο γωνίες. Ωστόσο, η περίπτωση να βρίσκεται η πόρτα στη μέση του δωματίου είναι σχετικά σπάνια.
Μακρόστενο δωμάτιο
Συνήθως τα στενά δωμάτια θεωρούνται μειονεκτικά, όσον αφορά στην επίπλωσή τους. Ωστόσο, στην περίπτωση του παιδικού δωματίου με ένα μονό κρεβάτι, η διαρρύθμιση είναι εξαιρετικά εύκολη καθώς το κρεβάτι μπορεί να τοποθετηθεί σε επαφή με τον τοίχο (η μεγάλη πλευρά του κρεβατιού σε επαφή με τον τοίχο).

Το υπνοδωμάτιο διαθέτει κρεβάτι, γραφείο, ντουλάπα και βιβλιοθήκη. Το πλεονέκτημα της διαρρύθμισης είναι η τοποθέτηση του γραφείου ακριβώς κάτω από το παράθυρο. Η λύση είναι κατάλληλη και για εφηβικό/νεανικό δωμάτιο.

Το κρεβάτι τοποθετήθηκε στη μέση του τοίχου αφήνοντας αρκετό χώρο στο τέλος του δωματίου για το γραφείο και την ντουλάπα. Μπροστά από το κρεβάτι μπορεί να τοποθετηθεί μια κονσόλα για τηλεόραση (σε περίπτωση που αφορά σε νεανικό δωμάτιο).

Το κρεβάτι τοποθετήθηκε στη μικρή πλευρά του δωματίου και δίπλα του τοποθετήθηκε ένα μικρό κομοδίνο. Στον άδειο τοίχο, μπορεί να μπεί ταπετσαρία ή/και ράφια.
Δωμάτιο μεσαίου μεγέθους
Στα δωματια μεσαίου μεγέθους το κρεβάτι μπορεί τα τοποθετηθεί είτε σε επαφή με κάποιο τοίχο είτε κάθετα προς αυτόν (με το κεφαλάρι να ακουμπά στο τοίχο). Ο χώρος είναι αρκετός, ώστε να μπορούν να δημιουργηθούν και επιπλεόν ζώνες δραστηριοτήτων όπως ζώνη παιχνιδιού, διαβάσματος, χαλάρωσης, κτλ. Φυσικά θα πρέπει να τοποθετηθούν και τα αντίστοιχα έπιπλα όπως ένας μικρός καναπές, ένα γραφείο με βιβλιοθήκη, ένα μικρό τραπεζάκι με καθισματάκια.

Στο δωμάτιο μπορεί να τοποθετηθεί ένας μικρός, διθέσιος καναπές και με αυτόν τον τρόπο να δημιουργηθεί μια γωνία για χαλάρωση, συζήτηση, κτλ. Το κρεβάτι, επίσης μπορεί να τοποθετηθεί στη γωνία (και όχι στη μέση του δωματίου) αφήνοντας ελεύθερο χώρο στο κέντρο του δωματίου.

Σημαντικό στοιχείο στο παιδικό δωμάτιο αποτελεί ο χώρος μελέτης, που μπορεί να διαμορφωθεί με ένα μεγάλο τραπέζι και μια βιβλιοθήκη.

Η ζώνη παιχνιδιού μπορεί να οργανωθεί με την τοποθέτηση ενός μικρού τραπεζιού και καθισμάτων στο κέντρο του δωματίου. Στο χώρο αυτό, το παιδί μπορεί να ζωγραφίζει, να διαβάζει, να παίζει, ακόμη και να τρώει.
Παιδικό δωμάτιο μεγάλων διαστάσεων
Στα δωμάτια που έχουν μεγάλες διαστάσεις μπορούν να τοποθετηθούν μεγάλες ντουλάπες, συρταριέρα, γραφείο, βιβλιοθήκη, κτλ.

Το δωμάτιο διαθέτει μεγάλη, πεντάφυλλη ντουλάπα, συρταριέρα και ζώνη παιχνιδιού.

Το δωμάτιο διαθέτει μεγάλη, πεντάφυλλη ντουλάπα, συρταριέρα και ευρύχωρη ζώνη μελέτης με γραφείο και βιβλιοθήκη.

Το κρεβάτι τοποθετήθηκε με το κεφαλάρι στη γωνία και έτσι εξοικονομήθηκε αρκετός χώρος για την τοποθέτηση ενός μικρού καναπέ.
