Ερώτηση αναγνώστη
“Κάνουμε μια νέα οικοδομή (μεζονέτα) και έχουμε κολλήσει αυτήν την στιγμή στο τι κάγκελα θα έχει η εσωτερική σκάλα. Μας έχουν προτείνει είτε στηθαίο χτιστό με τούβλα, είτε ξύλινα κάγκελα με κουπαστή (επειδή μας αρέσει το ξύλο). Στην φωτό σας βάζω τα σχέδια των 2 ορόφων για να μου πείτε την γνώμη σας.” Σωφρόνης
Η άποψη μας
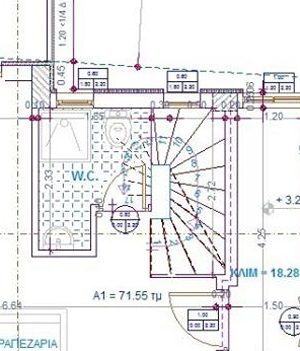
Μελετώντας τη θέση της εσωτερικής σκάλας στις κατόψεις που μας στείλατε έχουμε να παρατηρήσουμε τα εξής:
Η σκάλα βρίσκεται σε μια διακριτική θέση του χώρου περιβαλλόμενη από τοίχους, οπότε αποτελεί περισσότερο λειτουργικό στοιχείο της κάτοψης.
Ο άνω βραχίονας (τμήμα) της σκάλας ενσωματώνεται στο W>C του ισογείου, δηλ. κάτω από τη σκάλα υπάρχει τοίχος που δημιουργεί το W.c.
Τα πρώτα σκαλιά της σκάλας καλύπτονται από το μικρό χώρο που δημιουργείται στον επάνω όροφο.

Ισόγειο

Όροφος
Η καλύτερη επιλογή για την περίπτωση σας αποτελεί το κιγκλίδωμα, το οποίο μπορεί να είναι εξολοκλήρου ξύλινο σε κάποιο διακριτικό σχέδιο με λεπτή διατομή (ράβδοι ή κολωνάκια) είτε μεταλλικές ράβδοι με ξύλινη κουπαστή.

https://br.pinterest.com/sylviov/guarda-corpo-para-escada/

