Η απάντηση μας:
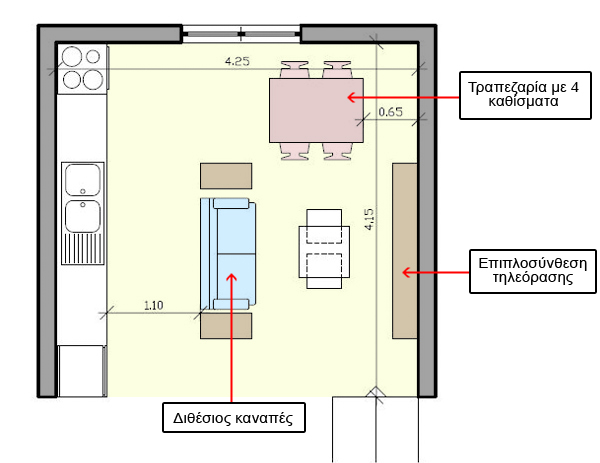
Μια κατάλληλη διάταξη επίπλων θα μπορούσε να είναι η εξής: Μια μικρή τραπεζαρία 4 ατόμων μπορεί να τοποθετηθεί στη γωνιά του χώρου κοντά στην μπαλκονόπορτα, ενώ ένας διθέσιος καναπές μπορεί να τοποθετηθεί με πλάτη στην κουζίνα, στο κέντρο του χώρου, αφήνοντας επαρκή διάδρομο για τη λειτουργία της κουζίνας.
Απέναντι από τον καναπέ, μπορεί να τοποθετηθεί ένα έπιπλο για την τηλεόραση, κατάλληλων διαστάσεων.

Η επιπλοσύνθεση της τηλεόρασης:
Προτείνουμε δύο εναλλακτικές λύσεις: Στην μία περίπτωση η επιπλοσύνθεση έχει μεγαλύτερο όγκο και περισσότερους κλειστούς αποθηκευτικούς χώρους ενώ στην άλλη η επιπλοσύνθεση έχει μικρότερο όγκο.
Το τραπεζάκι του καθιστικού:
Το τραπεζάκι του καθιστικού μπορεί να έχει απλό τετράγωνο σχήμα. Για μεγαλύτερη εξοικονόμηση χώρου μπορεί να ενσωματώνει 2 σκαμπό.

Άλλα έπιπλα:
Εκατέρωθεν του καναπέ μπορούμε να διατάξουμε δύο στοιχεία που μπορούν να λειτουργούν αφενός ως πλευρικά τραπεζάκια αφετέρου ως βιβλιοθήκες. Επιπλεόν, μπορούν να είναι τροχήλατα για να μετακινούνται εύκολα.

Κουρτίνες:
Στην μπαλκονόπορτα προτείνουμε ρόμαν blinds, αντί των κλασικών κουρτινών, που ‘γεμίζουν’ το χώρο.
Υλικά και χρώματα:
Γενικά προτείνουμε μονοχρωματικό σχήμα με απαλά χρώματα. Όπου επίσης μπορείτε (πχ. στο τραπεζάκι του καναπέ ή στην τραπεζαρία) επιλέξτε ως υλικό το γυαλί, που λόγω της διαφάνειας του ενισχύει το αίσθημα της ευρυχωρίας.

Ερώτηση αναγνώστριας: