Την απάντηση δίνει η Ζωή Καραμπάση (Interior designer)
Μας λείπουν βασικές πληροφορίες για τη σωστή τοποθέτηση των ειδών υγιεινής. Πρέπει να γνωρίζουμε που είναι η αποχέτευση γιατί δεν μετακινείται εύκολα (θέση λεκάνης) και που βρίσκεται η πόρτα του μπάνιου. Πήραμε ως δεδομένο και τις 2 περιπτώσεις τοποθέτησης της πόρτας, στο 1,90 και στο 2,70.
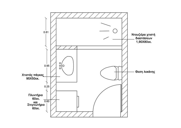
Παράδειγμα 1:
Εδώ μπορεί να γίνει μια μεγάλη χτιστή ντουζιέρα από τοίχο σε τοίχο όπου μπορείτε να δημιουργήσετε και χτιστό κάθισμα αν σας χρειάζεται.
Έγινε ένας χτιστός πάγκος 95εκ. όπου υπάρχει ο νιπτήρας, δίπλα του το πλυντήριο και από πάνω ακριβώς το στεγνωτήριο. Η λεκάνη μπορεί να μετακινηθεί δεξιά και αριστερά.

Παράδειγμα 2:
Εδώ αλλάζει η ντουζιέρα, γίνεται πορσελάνινη διαστάσεων 90χ90. Το πλυντήριο και το στεγνωτήριο μπορεί να μπει το ένα πάνω από το άλλο ή δίπλα.

Παράδειγμα 3:
Σε αυτή τη λύση αλλάζει η θέση της λεκάνης και η ντουζιέρα γίνεται 72Χ90 ή 90Χ90.

Παράδειγμα 4:
Στη παρακάτω λύση αλλάζουμε τη θέση της πόρτας και το μπάνιο διαμορφώνεται ανάλογα.

Σημείωση:
Όταν υπάρχει πλυντήριο μέσα στο μπάνιο ή άλλες συσκευές ,η καλύτερη τοποθέτηση είναι κοντά στη πόρτα ,σε περίπτωση βλάβης να μπορεί να βγει εύκολα από το μπάνιο.
