Ερώτηση αναγνώστριας:
"Γεια σας. θα ήθελα την γνώμη σας για το υπνοδωμάτιο το οποίο παρόλο που είναι μεγάλο η διαρρύθμιση του είναι πολύ δύσκολη. Το δωμάτιο θα φιλοξενήσει ένα πεντάχρονο αγόρι."
Ευχαριστώ
Η απάντησή μας:
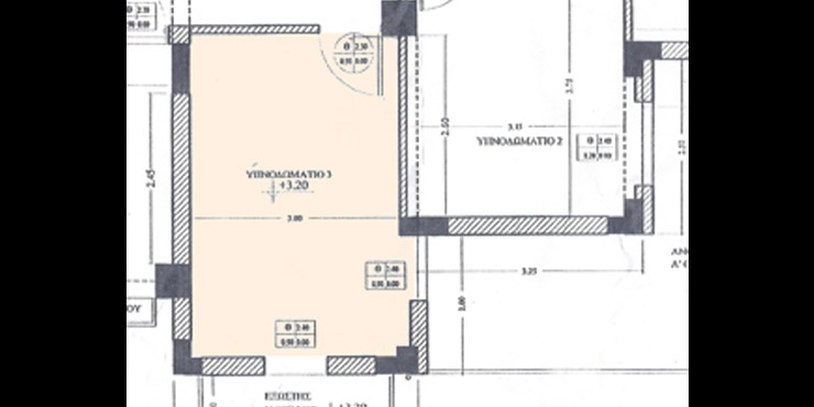
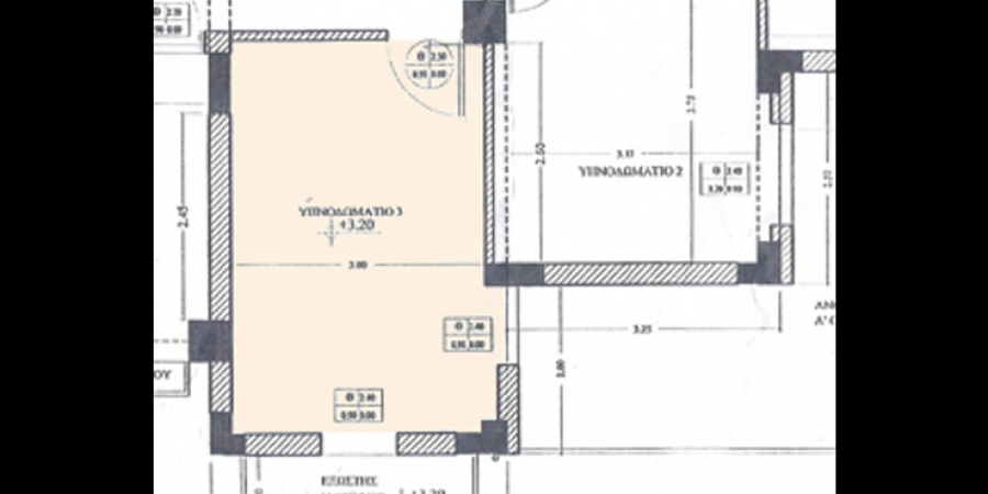
H διαρρύθμιση του δωματίου αυτού είναι αρκετά δύσκολη όχι μόνο γιατί είναι μακρόστενο αλλά και γιατί έχει δύο μπαλκονόπορτες που δεσμεύουν δύο τοίχους.
Η πρόταση μας είναι η εξής:
Καθώς το δωμάτιο είναι μακρόστενο, μπορεί να διαχωριστεί σε δύο ζώνες:
- Α) Στη ζώνη ύπνου
- Β) Στη ζώνη εργασίας, παιχνιδιού και μελέτης
Στη ζώνη ύπνου μπορει να τοποθετηθεί το κρεβάτι, μια ντουλάπα καθώς και μικρότερα έπιπλα (κομοδίνο, συρταριέρα, πουφ, κλπ). Στη ζώνη εργασίας μπορει να τοποθετηθεί κεντρικά ένα τραπέζι μελέτης και μια μεγάλη βιβλιοθήκη. Το μεγάλο πλεονέκτημα της ζώνης μελέτης είναι το άπλετο φυσικό φώς που θα εισέρχεται στο χώρο.

Ο διαχωρισμός των ζωνών:
Για να διαχωριστεί η ζώνη του ύπνου από τη ζώνη μελέτης μπορεί να κατασκευαστεί ένα έπιπλο, όπως για παράδειγμα μια βιβλιοθήκη. Το έπιπλο αυτό δεν χρειάζεται να είναι πολύ ψηλό, να φτάνει δηλαδή μέχρι την οροφή, έτσι ώστε να μην εμποδίζει το φυσικό φώς να εισέρχεται σε όλο το δωμάτιο. Το ύψος για παράδειγμα της βιβλιοθήκης μπορεί να κυμαίνεται μεταξύ 1.60 έως 1.70 μέτρων.

Στα περισσότερα κενά της βιβλιοθήκης μπορούν να τοποθετηθούν κουτιά σε έντονα χρώματα. Μερικά κουτιά μπορούν να κοιτούν προς το κρεβάτι και μερικά προς τη περιοχή εργασίας.



