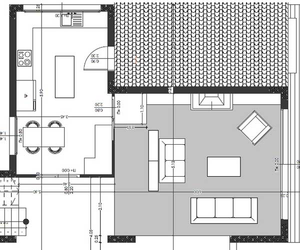
Η κ. Αλεξάνδρα ζητάει την άποψη μας για τη θέση του τζακιού στο καθιστικό της, που βρίσκεται ένα σκαλοπάτι χαμηλότερα από το επίπεδο του υπόλοιπου χώρου και της TV με τις συναφείς συσκευές.
Συγχρόνως με τη συνολική οργάνωση των επίπλων του καθιστικού θέλει να εκμεταλλευτεί τη θέα από τη μεγάλη μπαλκονόπορτα, να επιτύχει ευρυχωρία και άνετη μετακίνηση και να ενσωματώσει αρμονικά το σκαλοπάτι προς την κουζίνα. Μας ενημέρωσε ότι το στυλ διακόσμησης του σπιτιού είναι σύγχρονο.

Προτείνουμε
Μετά από μελέτη της κάτοψης του χώρου, που μας στείλατε η καλύτερη θέση για το τζάκι σας είναι στον επιμήκη τοίχο του καθιστικού σε συνέχεια με το σκαλοπάτι προς την κουζίνα.
Φανταζόμαστε ένα ενιαίο μέτωπο τζακιού σε όλο το μήκος του τοίχου, γιατί επιτρέπει την πιο σωστή τοποθέτηση των επίπλων του καθιστικού και εκμετάλλευση του απέναντι τοίχου αξιοποιώντας τη μεγάλη μπαλκονόπορτα και την ενσωμάτωση του σκαλοπατιού προς την κουζίνα.
1η λύση
Το τζάκι μπορεί να τοποθετηθεί κεντρικά στον τοίχο αυτό, περίπου όπως αποτυπώνεται στο σχέδιο που μας στείλατε. Η τηλεόραση στην περίπτωση αυτή πρέπει να τοποθετηθεί πάνω από το τζάκι.

Η βάση του τζακιού διαμορφώνεται σε ένα ‘ράφι’, που διατρέχει όλο το μήκος του τοίχου και ενοποιείται με σκαλοπάτι με την επένδυση τους με το ίδιο υλικό και τη διαφοροποίηση τους με το δάπεδο του σαλονιού.

Η θέση αυτή του τζακιού παραπέμπει σε λύση συμμετρική όσον αφορά στις κατασκευές βιβλιοθηκών και προθηκών, φωτιζόμενων ή όχι εκατέρωθεν του τζακιού.
Δημιουργείται έτσι ένα κεντρικό σημείο στο χώρο που τονίζεται ακόμη περισσότερο με την επιλογή διαφορετικού χρώματος στον τοίχο.

2η λύση
Σε περίπτωση που επιθυμείτε την TV σε άλλη θέση, το τζάκι πρέπει να μετακινηθεί προς την μπαλκονόπορτα, για να έχετε πιο κεντρικά την TV.

Να σημειωθεί ότι η καμινάδα του τζακιού μπορεί να τοποθετηθεί στο κέντρο του τοίχου ανεξάρτητα από τη θέση του τζακιού. Η μέγιστη απόκλιση της καμινάδας από το τζάκι είναι 50 εκ.
Το ‘ράφι’ του τζακιού είναι και πάλι ενοποιημένο με το σκαλοπάτι της κουζίνας, αλλά σταματάει στο τζάκι, δίνοντας τη δυνατότητα να δημιουργηθεί χώρος αποθήκευσης των ξύλων μεταξύ του τζακιού και του εξωτερικού τοίχου της μπαλκονόπορτας.

Μια ασύμμετρη σύνθεση από βιβλιοθήκες και βιτρίνες πλαισιώνουν την TV, ενώ αριστερά το ‘ράφι’ του τζακιού προσφέρεται σαν βάθρο για κάποιο γλυπτό ή διακοσμητικό αντικείμενο ιδιαίτερης προβολής.

Δημιουργείται έτσι μια συνολική σύγχρονη σύνθεση, που αναδεικνύει όλο το μήκος του τοίχου.
Για το δάπεδο του σαλονιού επιλέξτε ανάλογα της λύσης ανοιχτόχρωμο ή σκουρόχρωμο πλακάκι μεγάλης διάστασης. Η επιλογή υλικού δική σας.
Για την μπαλκονόπορτα μπορείτε να επιλέξετε εκτός από την κλασσική λύση της σούρας, κουρτίνες ρόμαν ή ρόλερ για πιο μοντέρνα εκδοχή διακόσμησης.
Άρθρα σχετικά με τη διαμόρφωση του χώρου σας για περισότερη πληροφόρηση
- Ο ζωγράφος Γιώργος Ηλιάδης
 - Τζάκια: Οι Βασικές κατηγορίες
 - Ας γνωρίσουμε την ενδοδαπέδια θέρμανση
 - Οδηγός αγοράς για τα κουφώματα
 - Ιδέες διακόσμησης για το καθιστικό
 - Τέχνη στους τοίχους με καλοριφέρ
 - Τα υφάσματα και ο ρόλος τους στην εσωτερική διακόσμηση
 - Ας διαλέξουμε κουρτίνες
 - Πρακτικός οδηγός για τα δάπεδα
 - Κρεμαστά φωτιστικά οροφής: επιλογές
 - Εντυπωσιακά έπιπλα από τον Bauke Knottnerus
 

                
Ιδέες χωροθέτησης τζακιού σε καθιστικό