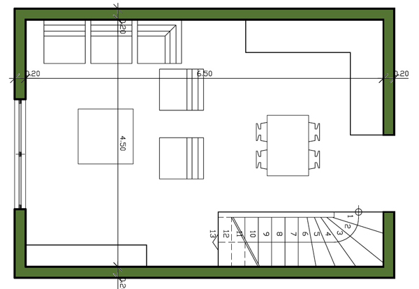
Το καθιστικό της κ. Μαρίας είναι ενιαίο με την κουζίνα και έχει διαστάσεις 4,50x 6,50μ. στην πίσω γωνία του χώρου υπάρχει εσωτερική σκάλα, ενώ απέναντι διαμορφώνεται ο χώρος της κουζίνας σε σχήμα Γ. Στο χώρο αυτό η κ. Μαρία θέλει να τοποθετήσει γωνιακό καναπέ μήκους 2,50μ, ηλεκτρικό τζάκι, βιβλιοθήκη και μικρή τραπεζαρία.

Ζητάει τις προτάσεις μας για διαρρύθμιση του χώρου, καθώς επίσης και για τα χρώματα στα ντουλάπια κουζίνας και στους τοίχους. Μας πληροφορεί ότι το δάπεδο έχει πλακάκια μπεζ και ο καναπές έχει γκρι- καφέ χρώμα.

Οι προτάσεις μας
Η προτεινόμενη χωροθέτηση των επίπλων φαίνεται στη φωτό με την κάτοψη του. Η μικρή τραπεζαρία τοποθετείται στο κέντρο του χώρου της κουζίνας, ώστε γύρω της να αφήνεται διάδρομος κυκλοφορίας. Για μεγαλύτερη αίσθηση ευρυχωρίας μπορεί να είναι κατασκευασμένη από διαφανές υλικό (τραπέζι: γυαλί, καθίσματα:plexiglas).

Στην περιοχή μπροστά από την μπαλκονόπορτα τοποθετείται ο γωνιακός καναπές και ακριβώς απέναντι μία σύνθεση επίπλου σε wenge με ράφια που λειτουργεί σαν βιβλιοθήκη και στο κέντρο του τοποθετείται το ηλεκτρικό τζάκι και η tv. Αποφεύγουμε να προτείνουμε ογκώδη κατασκευή για άνεση και ευρυχωρία στο χώρο.

Για τους τοίχους προτείνουμε μονοχρωμία μιας ανοιχτής απόχρωσης του lime με μοναδικό σκουρότερο τόνο στο φόντο του τζακιού και της tv την απόχρωση του πράσινου της ελιάς.


Στην απόχρωση του lime με πουά προτείνουμε κουρτίνα ρόμαν, γιατί η σούρα στην κουρτίνα ‘μικραίνει’ οπτικά το χώρο.
Ένα χαλί με μωβ απόχρωση μπορεί να συνδυαστεί με τον γκρι-καφέ καναπέ (χωρίς να γνωρίζουμε την ακριβή απόχρωση του).


Για τα ντουλάπια κουζίνας προτείνουμε μια ανοιχτή απόχρωση του μπεζ με πλάτη κουζίνας πλακάκια μπεζ ή έγχρωμο γυαλί. Το στυλ των ντουλαπιών της κουζίνας, καθώς και της πλάτης θα εξαρτηθεί από το στυλ διακόσμησης του χώρου (κλασικό ή σύγχρονο).



Οι πινελιές στο χώρο (πίνακες, διακοσμητικά αντικείμενα κλπ.) αποτελούν προσωπική σας επιλογή, ανάλογα με τις επιθυμίες και προτιμήσεις σας για ευχάριστη διαβίωση.
Πηγή φωτό
Αρχείο DecoBook
Αρχείο DecoBook
Αρχείο DecoBook
Αρχείο DecoBook
www.kitchen-design-ideas.org/pictures-of-kitchens-modern-beige.htmlA

                
Προτάσεις διαρρύθμισης ενιαίου χώρου καθιστικού-κουζίνας και επιλογής χρωματικού σχήματος του χώρου.
                
                                