
Το κτίριο βρίσκεται στο πίσω μέρος ενός μεγάλου, επίπεδου οικοπέδου με τις οριζόντιες γραμμές της πρόσοψής του να αντανακλώνται στο μονοπάτι από το δρόμο. Η στέγη και το ισόγειο είναι και τα δύο μεγάλα και σκούρα στοιχεία, που συνδυάζονται με τις μεγάλες γυάλινες επιφάνειες επιτυγχάνοντας γεωμετρία και εμφάνιση ξεκάθαρη.

Στο μπροστινό μέρος του σπιτιού, παράλληλα προς το δρόμο, σκαλοπάτια από μπετόν οδηγούν κάτω προς ένα υπόγειο επίπεδο αίθριο, μπροστά από ένα δωμάτιο τύπου χωλλ- καθιστικού με γυάλινα ανοίγματα. Εκατέρωθεν του αίθριου στον υπόγειο χώρο αναπτύσσονται τα υπνοδωμάτια. Στο πίσω μέρος του σπιτιού, το σκηνικό συνεχίζεται με τη μορφή μιας μακράς, κεκλιμένης ράμπας προς τον κήπο.


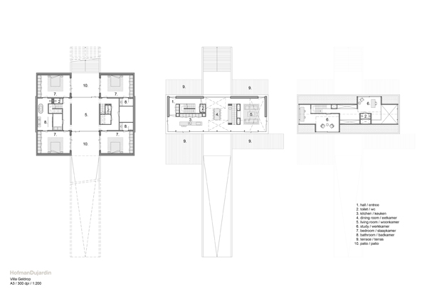
Η Villa Geldrop είναι ένα σπίτι για έναν επιχειρηματία με οικογένεια. Θεωρούμενο ως ένα σπίτι, είναι εύκολο να αναλυθεί. Τα υπνοδωμάτια και τα μπάνια βρίσκονται κάτω από το έδαφος. Το σαλόνι, η τραπεζαρία και η κουζίνα βρίσκονται στο ισόγειο.


Στο επάνω επίπεδο, πιο οικείο από τους άλλους χώρους, λόγω της κεκλιμένης στέγης, έχει δημιουργηθεί μια περιοχή μελέτης, που επωφελείται από το έμμεσο φως που δημιουργείται από τη σύνθεση του γυαλιού και του ανοίγματος, στο οποίο δημιουργείται ένα είδος παταριού. Αυτό έχει σαν αποτέλεσμα το σπίτι, παρά την έντονη γεωμετρία του, να είναι άνετο και ζεστό, αλλά όχι μεγάλο και ψυχρό.




Το κτίριο είναι περισσότερο από ένα σπίτι, εντούτοις. Κυρίως ως αποτέλεσμα των διαφορετικών αλλά συμπληρωματικών επιθυμιών του πελάτη και του αρχιτέκτονα, το ίδιο το έργο προσφέρεται για μια πολυεπίπεδη ανάλυση. Υπάρχει ορατή σύνδεση μέσω του κύριου άξονα του σπιτιού, η οποία εκτείνεται κατά μήκος της τάφρου από σκυρόδεμα, που καθορίζει την χωρικότητα του έργου. Η αίσθηση αυτή γίνεται εντονότερη με τη μετατόπιση των δύο κλιμάκων στο πλάι. Και οι δύο σκάλες ξεκινούν από το χαμηλότερο επίπεδο, οδηγούν στο ισόγειο και η μία από αυτές συνεχίζει στη σοφίτα.


Με τις κατόψεις ως οδηγό, το έργο μπορεί να θεωρηθεί ως μια σύγχρονη ερμηνεία του κλασικού σχεδίου, που παραπέμπει σε κουτί, που έγινε διάσημο από τους Ιταλούς αρχιτέκτονες της Αναγέννησης, όπως ο Palladio. Αυτό επιτρέπει να αποκαλυφθεί η ουσία του έργου. Η τάφρος που διαπερνά το κτίριο και ο προσανατολισμός των δωματίων προς τον κήπο, στο πίσω μέρος είναι μια επιβεβαίωση της σημασίας του φωτός και της ποιότητας του χώρου που δημιουργήθηκε. Με αυτή την έννοια, ο προσανατολισμός των δωματίων θεωρείται ως μια έξυπνη οργάνωση του χώρου και του φωτός, για ένα ισχυρό αποτέλεσμα.








Συντελεστές του έργου
- Σχεδιασμός: Hofman Dujardin Architects, Amsterdam
- Επικοινωνία: Michiel Hofman
- Sumatrakade 737 1098 EE Amsterdam, The Netherlands
- Αυτή η διεύθυνση ηλεκτρονικού ταχυδρομείου προστατεύεται από τους αυτοματισμούς αποστολέων ανεπιθύμητων μηνυμάτων. Χρειάζεται να ενεργοποιήσετε τη JavaScript για να μπορέσετε να τη δείτε.
- www.hofmandujardin.nl
Στοιχεία έργου
- Έτος: 2011
- Ιδιωτικό έργο
- Μέγεθος; 415m²
- Κόστος κατασκευής: € 800.000, χωρίς ΦΠΑ
- Μηχανικοί έργου: Bouwtechnisch Adviesburo Ad Wouters Mierlo
- Κατασκευαστής: KSB Snoeijen Bouw
- Ηλεκτρολογικά: Mebro Elektrotechniek Nuenen
- Κλιματισμός: Installatiebedrijf Snijders Best
- Γυάλινες προσόψεις: Metaglas Tiel
- Τούβλα πρόσοψης: Wienerberger Zaltbommel
- Φωτισμός: MOOOI Amsterdam
Φωτογραφίες: Matthijs van Roon, Amsterdam
Κείμενο: Philip Allin Amsterdam
Ευχαριστούμε θερμά τους Hofman Dujardin Architects για την παραχώρηση των φωτογραφιών και του κειμένου
