Θολώνοντας τα όρια μεταξύ χώρου και αντικειμένου, οι MOD κάλυψαν εννοιολογικά το Canvas House με μία στρώση λευκού χρώματος που παρέχει έναν καμβά για το μέλλον, ενώ αποκαλύπτει τη διατήρηση της ιστορικότητας σε εστιασμένα σημεία. Το σπίτι ρυθμικά αποκαλύπτει τμήματα του παρελθόντος του, με σκιές παλιάς ξυλείας, καθώς και στρώσεις από τούβλα που αποκαλύπτονται και περίπλοκες λεπτομέρειες ανακατασκευασμένων και ανακυκλωμένων επίπλων.
Ταυτόχρονα, το MOD καλεί τους επισκέπτες να φανταστούν ένα μέλλον με το Dream, ένα κείμενο με νέον που δημιούργησε το στούντιο, με ένα απόσπασμα του Thomas Jefferson που εμπεριέχει την προσέγγιση του MOD στο Canvas House. Το απόσπασμα συνοψίζει τη στάση του σπιτιού. Ο Colin των MOD εξηγεί ότι "είναι ένας ουδέτερος λευκός καμβάς για το μέλλον που θα ονειρευτεί κάποιος, αντί για εκτεταμένο φόρο τιμής στο παρελθόν".

1. Η σύνοψη στόχων και πώς απάντησε το MOD
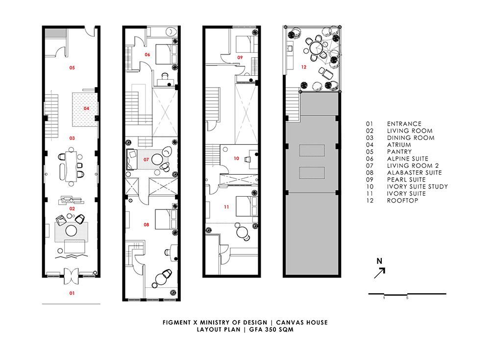
Το MOD έχει πρόσφατα ολοκληρώσει το κατάλευκο Canvas House για co-living (κοινή διαβίωση), που βρίσκεται σε ένα ιστορικό shophouse στη Σιγκαπούρη στην οδό Blair.
Ο πελάτης (Figment) μας έδωσε ένα σφιχτό προϋπολογισμό και 4 μήνες περιθώριο (σχεδιασμός, προμήθεια & προετοιμασία) για να ξανασκεφτούμε τους εσωτερικούς χώρους, με σκοπό την ενοικίαση των σουιτών σε μετανάστες για διαμονή 3-12 μηνών. Τα ενοίκια ξεκινούν από 3300 δολάρια Σιγκαπούρης το μήνα. Ο στόχος ήταν να κάνουμε κάτι απολύτως ελκυστικό για τους ενοικιαστές, και να βρούμε ένα τρόπο για να ξεχωρίζει αυτό το shophouse.
Αντιμέτωποι με ένα σφιχτό προϋπολογισμό και ένα στενό χρονοδιάγραμμα, παράλληλα με την επιθυμία για μια πρωταρχική αντίληψη για την υποστήριξη των κινήσεων, ο Colin και η ομάδα του εμπνεύστηκαν το "Canvas House":
α. Βάφοντας ολόκληρο το σπίτι σε λευκό, για να προσφέρει ένα καμβά για το μέλλον, οι MOD αποφάσισαν να επικεντρωθούν στο "upcycling" (αναβαθμιστική ανακύκλωση) για να καλύψουν και τους δύο περιορισμούς.
β. Η πλειοψηφία από τα τραπέζια, καρέκλες, κασέλες, καθρέφτες, οθόνες και τουαλέτες που υπήρχαν συντηρήθηκαν και απέκτησαν νέα χρήση.
γ. Για να αποδώσουν φόρο τιμής στο παρελθόν, αλλά να του δώσουν το χαρακτήρα για το μέλλον, οι MOD έβαψαν τα κομμάτια όλα λευκά αλλά άφησαν σκαλισμένες αποκαλυπτικές βινιέτες στα διακοσμητικά κινέζικα βάζα, στα κεραμικά πιάτα τοίχου, στα ξύλινα παραβάν, στις τουαλέτες κρεβατοκάμαρας και στις καρέκλες.
Αυτό δεν είναι μόνο εξαιρετικά βιώσιμο από άποψη ανακύκλωσης, είναι επίσης φιλικό προς τον προϋπολογισμό, προς το χρόνο αλλά και εννοιολογικά εντυπωσιακό.
 

2. "Μου αρέσουν τα όνειρα του μέλλοντος καλύτερα από την ιστορία του παρελθόντος"
Θολώνοντας τα όρια μεταξύ χώρου και αντικειμένου, οι MOD κάλυψαν εννοιολογικά το Canvas House με μία στρώση λευκού χρώματος που παρέχει έναν καμβά για το μέλλον, ενώ αποκαλύπτει τη διατήρηση της ιστορικότητας σε εστιασμένα σημεία.
Ο Colin εξηγεί: "Όταν πρόκειται για έργα προσαρμοστικής επανάχρησης, το ερώτημα είναι πάντα το ίδιο, πώς θα περάσουμε τη γραμμή μεταξύ του παρελθόντος και του παρόντος; Εάν κάποιος επιλέξει το έργο να είναι μόνο για συντήρηση, είναι τόσο καλό όσο ο χρόνος που δεν περνά ... πράγμα που θα μπορούσε να παραλύει και να περιορίζει. Αλλά ταυτόχρονα, ούτε θέλουμε να αγνοήσουμε εντελώς την ιστορία δημιουργώντας κάτι πολύ ξένο ή νεωτερικό. Η απάντησή μας ήταν να επιστρώσουμε πάνω από την υπάρχουσα ιστορία ένα κοινό κενό καμβά αφήνοντας συγχρόνως χορογραφημένες αναλαμπές στο παρελθόν, καλύπτοντας τόσο το χώρο όσο και τα έπιπλα με αυτόν – κάτι που μας επέτρεψε να θολώσουμε τα εγγενή όρια μεταξύ παρελθόντος και παρόντος, αντικειμένου και χώρου”.
 
Για να παρουσιάσουν αυτό χωρικά, οι MOD δημιούργησαν ένα κομμάτι τέχνης από νέον που βασίζεται σε κείμενο, που προβάλλει ένα απόσπασμα από τον Thomas Jefferson, το οποίο εμπεριέχει την προσέγγιση των MOD στο Canvas House. Το απόσπασμα συνοψίζει τη στάση του σπιτιού, όπως παραθέτει ο Colin, " είναι ένας ουδέτερος λευκός καμβάς για το μέλλον που θα ονειρευτεί κάποιος, αντί για εκτεταμένο φόρο τιμής στο παρελθόν". Κατασκευασμένο από τους Signmakers, το απόσπασμα είναι γραμμένο με λευκό και κόκκινο νέον σε ένα μονοκόμματο γυαλί εγκιβωτισμένο σε κουτί από αλουμίνιο μήκους 1,4m x 2,2m x 0,1m.
3. Θολώνοντας τα όρια
Κατά μία έννοια, το λευκό θολώνει τη διάκριση μεταξύ νέου και παλαιού. Επίσης, θολώνει τη διάκριση μεταξύ των χωρικών στοιχείων (π.χ. τοίχοι, οροφή) και των αντικειμένων που βρίσκονται μέσα στο χώρο (π.χ. έπιπλα και φώτα). Με όλα λευκά, γίνεται ασαφής η διχοτόμηση αντικειμένου / χώρου. Το σπίτι γίνεται περισσότερο ολιστικό παρά ένα χώρος γεμάτος από αντικείμενα και ανθρώπους που κινούνται μέσα και έξω. Αυτό επιτρέπει στους ανθρώπους που χρησιμοποιούν το χώρο, να ενεργοποιήσουν πραγματικά το χώρο και να είναι τα κύρια στοιχεία του αντί απλώς να κατοικούν σε αυτόν.
 
4. Διαστρωμάτωση και σκιές
Τμήματα του παρελθόντος αποκαλύπτονται ρυθμικά σε ολόκληρο το χώρο, με στρώσεις αποκαλυφθέντων τούβλων και περίπλοκες λεπτομέρειες των παλαιών επίπλων και σκιές παλιάς ξυλείας. Αυτή η τεχνική εφαρμόζεται σε διάφορους χώρους, συμπεριλαμβανομένων αποκαλύψεων ξυλείας σε κύκλους στις σκάλες σε όλο το τετραώροφο σπίτι, και παιχνιδιάρικες αποκαλυπτικές βινιέτες σε διακοσμητικά κινέζικα βάζα, vintage κεραμικά πλακάκια κρεμασμένα στον τοίχο και ξύλινα παραβάν, τουαλέτες και καρέκλες.
Οι ιστορικές λεπτομέρειες διατηρούνται κατά παρόμοιο εννοιολογικό τρόπο, όπου αποκαλύπτονται σε κύκλους τοίχοι από τούβλα. Ειδικότερα, στις σουίτες, οι επισκέπτες θα δουν τις “σκιές του χρόνου” που μεταδίδονται από τα κρεβάτια: μια συσκευή που ρίχνει σκιές, η οποία βασίζεται εννοιολογικά (το παρελθόν ρίχνει τη σκιά της παρουσίας του στο παρόν) και αποκαλύπτει το υπόβαθρο του δαπέδου.

 
5. Συνεργασία με τον καλλιτέχνη Kang για το σχεδιασμό των φωτιστιστικών
Το MOD συνεργάστηκε με τον Kang, έναν καλλιτέχνη που εξειδικεύεται στην ανακύκλωση και τη χρήση σύνθετων πλαστικών στην κατασκευή αξεσουάρ μόδας, για να παράγει την πρώτη του σειρά φωτιστικών. Μέρος του προγράμματος εργασιών του MOD, ο Kang εργάζεται από το γραφείο του MOD για να κατασκευάζει τα υλικά του. Οι MOD συνεργάστηκαν με τον Kang για να δημιουργήσουν 3 σετ φωτιστικών με συγκολλημένο πλαστικό κατασκευασμένο από πλαστική μεμβράνη, για τους διαδρόμους, τις περιοχές καθιστικού και τα αίθρια. Διατηρώντας την έννοια της διαστρωμάτωσης, η πλαστική μεμβράνη τοποθετήθηκε σε στρώσεις και στη συνέχεια σιδερώθηκε και θερμάνθηκε για να δημιουργηθεί ένα αδιάβροχο, σκληρό υλικό.

* Το shophouse είναι ένας τύπος κτιρίου που λειτουργεί ως εμπορική επιχείρηση και στους ορόφους ως κατοικία του καταστηματάρχη ενίοτε και των υπαλλήλων. Συνηθισμένος τύπος κτιρίου στη Νοτιοανατολική Ασία με στενή πρόσοψη και μεγάλο βάθος. Οι σειρές των shophouses κατά μήκος των δρόμων σε γειτονιές των αστικών κέντρων αποτελούν σήμερα αντικείμενο διατήρησης της αστικής κληρονομιάς τους.

Ministry of Design (MOD), με επικεφαλής τον Colin Seah, Ιδρυτή- Διευθυντή
Το Ministry of Design είναι μια ολοκληρωμένη φίρμα αρχιτεκτονικής, interior design και branding. Δημιουργήθηκε από τον Colin Seah για να αμφισβητήσει τον κανόνα και να επαναπροσδιορίσει τους χώρους, τις φόρμες και τις εμπειρίες που μας περιβάλλουν Οι εξερευνήσεις του MOD δημιουργούνται μέσα από μια ομαδική ατμόσφαιρα στούντιο και εξελίσσονται αδιάκοπα μεταξύ της φόρμας, του τόπου, του αντικειμένου και του χώρου. Το MOD προτιμά να ξεκινά πολύ κόντρα στο ρεύμα και να σχεδιάζει ολιστικές εμπειρίες παρά να σχεδιάζει λύσεις. Αυτό μεταφράζεται σε μια ευρεία ποικιλία προς το ρεύμα σχεδιαστικών εφαρμογών και μέσων: είτε είναι αρχιτεκτονική, σχεδιασμός προϊόντων, εσωτερική αρχιτεκτονική, branding, γραφιστική, τοπίο ή ακόμα και ο συνδυασμός διαφόρων κλάδων σε ένα μόνο έργο. Δεσμευμένοι στο όραμά τους για το σχεδιασμό ολιστικών εμπειριών, οι MOD διαχειρίστηκαν το Canvas House, τόσο ως διακοσμητές εσωτερικών χώρων όσο και καλλιτέχνες, δημιουργώντας τρία κομμάτια για το σπίτι: Σκιές, Επίπεδα και Όνειρο.
Figment, με επικεφαλής τον Fang Low, ιδρυτή-CEO
Σε μια σούπερ-αστική εποχή όπου οι άνθρωποι βρίσκονται σε κίνηση, η Figment επιδιώκει να δημιουργήσει λειτουργικούς χώρους διαβίωσης που έχουν αίσθηση του τόπου. Μετατρέπουμε ένα σπίτι σε σπιτικό, δουλεύοντας με τα τοπικούς δημιουργικούς για να σχεδιάσουμε πλήρως επιπλωμένες co-living σουίτες που είναι εμπνευσμένες από τον πολιτισμό και την κληρονομιά της κατοικίας, της γειτονιάς και της πόλης. Το πρόγραμμα Case Studies Homes είναι η έκφραση αυτής της προσέγγισης. Το πρώτο μας σετ σε αυτή τη σειρά σπιτιών βλέπει το παραδοσιακό shophouse που φαντασιώνεται από έναν τοπικό σχεδιαστή για το σύγχρονο co-living. Ο καθένας έχει δημιουργήσει διακριτικούς εσωτερικούς χώρους και επίπλωση που ανταποκρίνονται στη μοναδική κληρονομιά αυτών των ιστορικών κτιρίων. Τα σπίτια είναι επίσης διακοσμημένα με ειδικά έργα από τοπικούς καλλιτέχνες και τεχνίτες.
Ευχαριστούμε τους MOD για την παραχώρηση του κειμένου και του φωτογραφικού υλικού.
Απόδοση κειμένου στα ελληνικά: Ιφιγένεια Κωτίτσα, Αρχιτέκτων Μηχανικός
Η Ιφιγένεια Κωτίτσα είναι αρθρογράφος αρχιτεκτονικής και interior design στο decobook.gr & decosoup.com
