Το DNA του VUE επεκτείνει τις συμβατικές κινεζικές έννοιες της φιλοξενίας και ορίζεται από 4 βασικούς πυλώνες: 1. Ενθαρρύνει την κοινωνικοποίηση. 2. Εξυψώνει τον πολιτισμό. 3. Είναι γοητευτική και ευφάνταστη. 4. Είναι χαλαρωτική και ελκυστική.
Κάθε εξατομικευμένη ιδιοκτησία VUE θα αντλήσει στοιχεία από την κουλτούρα και την κληρονομιά του περιβάλλοντος της, αλλά πάντοτε υπερβαίνοντας το με μια σύγχρονη και καταπληκτική συστροφή. Χωρίς να απαρνείται τη σύγχρονη προσέγγιση, η αλυσίδα ενσωματώνει τις επιθυμίες του κάθε ταξιδιώτη, δημιουργώντας άνετους και φιλόξενους κοινωνικούς χώρους συνδυασμένους με ενδιαφέρουσα τέχνη και πρωτοποριακή κουζίνα.
Με την προγραμματισμένη επέκταση για πολλαπλά ακίνητα σε σημαντικές πόλεις της Κίνας, η αλυσίδα VUE Hotel πρωτοστάτησε με τον Wuhai, Διευθύνοντα Σύμβουλο της Vue Hotels και σε συνεργαστηκε με το διεθνώς αναγνωρισμένο στούντιο σχεδιασμού Ministry of Design, το οποίο είναι υπεύθυνο για την ολιστική στρατηγική, το branding και όλες τις πτυχές του σχεδιασμού & της δημιουργίας τέχνης. Το Vue Hotel αποτελεί μέρος ενός αυξανόμενου παγκόσμιου φαινομένου επώνυμων μπουτίκ ξενοδοχείων με τοπικές ρίζες, οι οποίες στοχεύουν να βυθίσουν τους επισκέπτες τους σε αυθεντικές και εξατομικευμένες εμπειρίες.
Η VUE είναι επίσης μέλος του Design Hotels ™ και είναι το πρώτο της μέλος στο Πεκίνο.
VUE Houhai, Πεκίνο
Η ναυαρχίδα των VUE Hotels βρίσκεται στο Πεκίνο, στην περιοχή Hutong του Houhai. Το ξενοδοχειακό συγκρότημα βρίσκεται στην άκρη της γραφικής λίμνης Houhai και γειτνιάζει με ένα καταπράσινο δημόσιο πάρκο, καθώς και με ιστορικά σπίτια Hutong που χρησιμοποιούνται ακόμα και σήμερα από τους κατοίκους της περιοχής. Βρίσκεται κατά μήκος της όχθης της λίμνης σε μια περιοχή με μπαρ και καφετέριες που σφύζουν από ζωντάνια.
Θεωρούμενο ως μια μεγάλη άσκηση επαναχρησης, το ξενοδοχείο περιλαμβάνει μια σειρά από καλλιτεχνικά μετασχηματισμένα οιονεί ιστορικά κτίρια από τη δεκαετία του 1950. Αυτό το συναρπαστικό ξενοδοχειακό συγκρότημα σας προσκαλεί να εξερευνήσετε τις πολυάριθμες εκφάνσεις του, όπου θα ανακαλύψετε μια σειρά από όμορφα διαμορφωμένους κήπους, ένα καφε- αρτοποιείο με πρόσοψη στην οδό Hutong, ένα επώνυμο εστιατόριο εγκατεστημένο σε μια αποθήκη, ένα μπαρ στον τελευταίο όροφο με θέα στη λίμνη, 80 δωμάτια και σουίτες, μερικά με ιδιωτικούς κήπους και με θέα στο πάρκο ή τη λίμνη.











Ουσιαστικά Σημεία του Σχεδιασμού
Α. Αρχιτεκτονική και Τοπίο
Το συγκρότημα του ξενοδοχείου περιλαμβάνει μια σειρά από οιονεί ιστορικά κτίρια από τη δεκαετία του 1950, με μια ποικιλία αρχιτεκτονικών στυλ και προσεγγίσεων. Αν και σχεδιάστηκαν πρωτίστως στο κινεζικό ύφος, τα κτίρια καλύπτουν μια σειρά διακοσμητικών στοιχείων από εξαιρετικά διακοσμητικές στέγες, χαρακτηριστικές φιγούρες, γλυπτά μπαλκόνια και καφασωτά παράθυρα, μέχρι απλές δίρριχτες στέγες και απλά τελειώματα τοίχων από τούβλα. Η σχεδιαστική προσέγγιση των μελετητών ήταν να ενοποιήσουν αυτήν την ποικιλόμορφη συλλογή στοιχείων μέσω του χρώματος και του τοπίου.

Όλα τα κτίρια έχουν σχεδιαστεί με ένα σκούρο γκρι χρώμα, πάνω στο οποίο έχουν επισημανθεί οι βασικές αρχιτεκτονικές λεπτομέρειες με μια σύγχρονη χρυσή πατίνα. Αυτά τα χαρακτηριστικά στοιχεία λάμπουν σε αντίθεση με το σκοτεινό σκηνικό και η προεξοχή τους προτείνει μια άτυπη "καταγραφή" των βασικών αρχιτεκτονικών λεπτομερειών. Καθώς ο επισκέπτης εξερευνά το συγκρότημα, αυτός ο “κατάλογος” των λεπτομερειών βαθμιαία φέρνει στο προσκήνιο τη διάκριση μεταξύ του ιστορικού και του σύγχρονου: μια λεπτή αντιπαράθεση, που υπογραμμίζει την πλούσια ένταση που προκύπτει από οποιοδήποτε σχεδιασμό προσαρμοστικής επανάχρησης.


Εννοιολογικά, ο σχεδιασμός αξιοποιεί όλους τους "αναξιοποίητους" ενδιάμεσους χώρους μεταξύ των κτηρίων, για να συνδέσει το συγκρότημα σε μια ενιαία ολιστική εμπειρία. Αυτοί οι ενδιάμεσοι χώροι αντιμετωπίζονται γραφικά με ένα πλέγμα τύπου " ice-ray" (τριγωνικών σχημάτων) που εμπνέεται από τα παραδοσιακά κινεζικά παραβάν. Επεξεργασμένα τρισδιάστατα χαραγμένα δάπεδα και δίοδοι υπερυψώνονται, ώστε να γίνουν ιδιωτικά μπαλκόνια ή κήποι.
B. Το καφέ FAB και η υποδοχή
Κατά την άφιξη και καθ’ οδόν προς την υποδοχή, η εμπειρία του επισκέπτη ξεκινάει αρχικά σε έναν από τους κοινωνικούς κόμβους του VUE Hotel: το καφέ FAB και το αρτοποιείο. Αυτός ο απλός και ζωντανός χώρος βλέπει τον θορυβώδη κεντρικό δρόμο Hutong, όπου μπορεί να δει σκηνές της καθημερινής τοπικής ζωής και του πολιτισμού. Το FAB είναι το ιδανικό μέρος για πρωινό, γρήγορο σνακ ή ένα φλιτζάνι καφέ. Η προσέγγιση του σχεδιασμού του εσωτερικού χώρου βασίζεται στα χαρακτηριστικά του μπροστινού δρόμου, στη χρήση των υλικών και των χρωμάτων. Ένα ευρύ φάσμα από γωνιές καθιστικού και επίπλων προσφέρει στο FAB ποικιλομορφία και ελκυστικότητα.

Η ρεσεψιόν είναι η πρώτη εμπειρία αποκλειστικά για τους. Οικεία και προσωποποιημένη η εμπειρία του check-in είναι απλή αλλά άνετη. Οι επισκέπτες περνούν το σημείο του θυρωρού όπου έχει τοποθετηθεί μία πρώτη εικαστική εγκατάσταση και φθάνουν στην υποδοχή, όπου δηλώνονται το χαρακτηριστικό χρώμα της αλυσίδας και θέματα χωρικού σχεδιασμού.


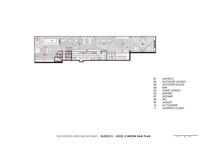
Γ. Το Εστιατόριο Pink Rabbit και το Moon Bar
Στεγασμένα στην πλευρά του συγκροτήματος προς τη λίμνη σε ένα πρώην κτίριο αποθήκης, το εστιατόριο και το μπαρ του τελευταίου ορόφου του VUE Hotel προσφέρουν ένα τεράστιο μενού τάπας και επιλογή κοκτέιλ/ποτού. Με την προσέγγιση του εστιατορίου από την παρακείμενη αυλή, οι επισκέπτες συναντούν μια φανταστική εγκατάσταση στην κορυφή της στέγης του κτιρίου από δύο γιγαντιαία κουνέλια από μεταλλικό πλέγμα. Η απλή αλλά εξεζητημένη ατμόσφαιρα του Pink Rabbit εναλλάσσεται με τον εσωτερικό σχεδιασμό. Τα εκτεθειμένα μεταλλικά και ξύλινα δικτυώματα, η ανοιχτή κουζίνα, τα καθίσματα σε στυλ καθιστικού σε συνδυασμό με ένα μπαρ και τον πάγκο του DJ, συμβάλλουν στο συνολικό παλμό του χώρου. Μια σειρά από ιδιωτικούς χώρους φαγητού και μια ήσυχη ζώνη τραπεζαρίας στον κήπο προσφέρουν ευκαιρίες για αποκλειστική ψυχαγωγία, ενώ το Moon Bar και η πισίνα με Jacuzzi στον τελευταίο όροφο προσφέρουν υπαίθρια εμπειρία πάνω από τις κορυφές των δέντρων, με πλήρη θέα στη γραφική λίμνη και το πάρκο Houhai.







Δ. Τα δωμάτια και το γυμναστήριο
Κατά το σχεδιασμό της ατμόσφαιρας των δωματίων του ξενοδοχείου, η αλυσίδα αποφάσισε να αναδείξει τον καινοτόμο χωροταξικό σχεδιασμό, αλλά και να τον συνδυάσει με ένα επίπεδο ανέσεων που θα ανταγωνίζονταν τα καλύτερα design ξενοδοχεία στην αγορά. Υψηλή θέση στην ατζέντα της κατείχε και η επιθυμία να ισορροπήσει η αδιαπραγμάτευτα σύγχρονη σχεδιαστική προσέγγιση με τοπικά πολιτιστικά στοιχεία και εικόνες. Τα προκύπτοντα δωμάτια είναι εκπληκτικά, αλλά και οικεία. Οι επιμέρους χώροι χωρίζονται απροσδόκητα με τη χρήση χρωμάτων, αποχρώσεων και υλικών, ενώ οι εικαστικές εγκαταστάσεις σε κάθε δωμάτιο συνεχίζουν την συνολική αφηγηματική του ξενοδοχείου. Οι εντυπωσιακοί χώροι μπάνιου συμπληρώνουν τους χαλαρωτικούς χώρους ύπνου. Πέρα από τα standard δωμάτια, οι σουίτες και τα δωμάτια με κήπο επεκτείνουν την εμπειρία του επισκέπτη με ευρύχωρους χώρους καθιστικού και τραπεζαρίας, υπερμεγέθη μπάνια και υπαίθριους καθιστικούς χώρους.








Το γυμναστήριο έχει σχεδιαστεί για να επεκτείνει το συνολικό σχεδιαστικό σχήμα και να το φέρει στο επόμενο επίπεδο δράματος και ζωντάνιας. Οι επιφάνειες με καθρέφτες και το πλέγματα δημιουργούν ένα χώρο ευνοϊκό για την υγεία και την ευεξία.
Ε. Εικαστικές εγκαταστάσεις και αίθουσα τέχνης
Κάθε ιδιοκτησία VUE έχει σχεδιαστεί γύρω από μια κεντρική αφήγηση εμπνευσμένη από την τοπικότητα ή την κουλτούρα της. Για το VUE Houhai Beijing, η αφήγηση άντλησε έμπνευση από τη λίμνη και την τοπική πανίδα. Στις φαντασιώσεις μας, η παρουσία του VUE στη γειτονιά Houhai έχει μια μαγική και φανταστική μεταμορφωτική επίδραση στα τοπικά ζώα. Αυτά τα φιλικά ζώα (αλεπούδες, κουνέλια, ελάφια) μεταμορφώνονται ανθρωπομορφικά από απλά ζώα για να γίνουν πιο ανθρώπινα, όπως και τα ζώα στα κινούμενα σχέδια συχνά υιοθετούν ανθρώπινες προσωπικότητες. Με το να γίνονται όλο και πιο ανθρώπινα, τα ζώα αρχίζουν να καλλιεργούν την αίσθηση περιέργειας για τον κόσμο γύρω τους και σαν "τουρίστες", αρχίζουν να εξερευνούν τα αξιοθέατα γύρω από τη λίμνη και τελικά σε εικονικές ιστορικές τοποθεσίες γύρω από το Πεκίνο - το Σινικό Τείχος, η Απαγορευμένη πόλη.
Αυτές οι εγκαταστάσεις τέχνης είναι διασκορπισμένες σε όλο το συγκρότημα και βρίσκονται επίσης σε κάθε δωμάτιο. Άλλες εγκαταστάσεις τέχνης, οι οποίες παράλληλα παρουσιάζουν αυτή την αφήγηση, αλλά επικεντρώνονται περισσότερο στο θέμα της “υπέρβασης του κινεζικού πολιτισμού”, βρίσκονται σε άλλους κοινόχρηστους χώρους όπως τα λόμπι των ανελκυστήρων και οι διάδρομοι.


Ευχαριστούμε τους μελετητές για την παραχώρηση του κειμένου και του φωτογραφικού υλικού.
Στοιχεία έργου
Interiors Designers: Ministry of Design
Design Team
Colin Seah, Kevin Leong, Joyce Low, Ruth Chong, Sarah Conceicao, Richard Herman, Tasminah Ali, Syazwani Wagiman, Rais Rahman, Patricia Segado, Angie Ng, Jascha Oakes, Tiang Yuping, Norberto Olegario, Mior Hasan, Don Castenada, Arnel Anonuevo, Danielle Liu, Sandra Goh
Τοποθεσία: No.9 Yangfang Hutong, Xicheng District, Beijing
Διαχείριση έργου: Fang Wen, He Ting
Επιφάνεια κτισμένη: 10000.0 m2
Υπαίθριος χώρος: 7500m2
Χρόνος κατασκευής: Απρίλιος 2015 έως Ιούλιος2017
Φωτογραφίες:Edward Hendricks
Κατασκευαστές:LG Electronics, SKK
