Το μελετητικό γραφείο MOD (Ministry of Design) αναζητούσε ένα κατάλληλο χώρο στη Σιγκαπούρη προκειμένου να εγκαταστήσει τα γραφεία του. Ο στόχος, ήταν τα εντοπιστεί ένας αρκετά μεγάλος χώρος, έτσι ώστε όλες οι αναγκαίες λειτουργίες να μπορέσουν να εγκατασταθούν σε έναν και μόνο όροφο. Ο χώρος, που τελικά επέλεξαν βρίσκεται στην συμβολή της ιστορικής Chinatown και στο επιχειρηματικό κέντρο της Σιγκαπούρης (Central Business District).

Η είσοδος στο εσωτερικό των γραφείων. Η πόρτα είναι κατασκευασμένη απο μαύρο μέταλλο.
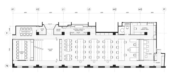
Η διαρρύθμιση του χώρου, έγινε με βασικό γνώμονα τη δημιουργία μια ανοιχτής κάτοψης. Η ελεύθερη και ανοιχτή επικοινωνία αποτελεί το βασικό κλειδί που οδηγεί στην καινοτομία και τη δημιουργικότητα. Συνεπώς, ο χώρος εργασίας δεν αντικατοπτρίζει κάποια ιεραρχία ανάμεσα στην ομάδα αλλα αντίθετα ενθαρρύνει την επικοινωνία, την ισότιμη συμμετοχή και τη συνεργασία.

Ο βασικός χώρος εργασίας είναι ανοιχτός και ενθαρρύνει την επικοινωνία
Για τους χώρους εργασίας επιλεχτήκαν εσκεμμένα τα δύο απόλυτα χρώματα: το λευκό και το μαύρο. Με αυτήν την επιλογή, επιδιώχθηκε η δημιουργία ενός ουδέτερου κελύφους μέσα στο οποίο να αναπτύσσονται ελεύθερα οι σχεδιαστικές ιδέες και οι πειραματισμοί της ομάδας.
Η βιβλιοθήκη επενδύθηκε με ανεπεξέργαστη ξυλεία. Ο χώρος είναι ήρεμος, κατάλληλος για συγκέντρωση και μάλλον λειτουργεί ως αντίβαρο στον υπόλοιπο χώρο.

Ο χώρος συνεδριάσεων όπου κυριαρχεί το μαύρο χρώμα
Η διαρρύθμιση των λειτουργιών και των επίπλων έγινε με γραμμικό τρόπο. Σχεδόν δημιουργείται η ψευδαίσθηση του καθρέφτη και έτσι επιμηκύνεται περισσότερο ο χώρος. Σύμφωνα με τους δημιουργούς ο εσωτερικός χώρος μοιάζει με το Barcode των προϊόντων, καθώς οι λειτουργίες και οι χώροι αναπτύσσονται ο ένας δίπλα στον άλλον.

Μετάβαση απο την είσοδο, σε έναν κατάλευκο χώρο, που ονομάζεται gallery, και στη συνέχεια προς το χώρο των γραφείων.
Έτσι, μετά την κεντρική είσοδο ο επισκέπτης βρίσκεται σε ένα κατάλευκο χώρο με αναβαθμούς, που ονομάστηκε Gallery και στη συνέχεια οδηγείται στα γραφεία, στα σημεία συνάντησης, στους χώρους συνεδριάσεων, κλπ.

Ο χώρος υποδοχής (Gallery) αμέσως μετά την κεντρική είσοδο
Υλικά
- Πάγκοι γραφείων: Λευκές επιφάνειες στους ανοιχτούς χώρους εργασίας και μαυρες επιφάνειες στα γραφεία συνεδριάσεων.
- Δάπεδο: Ξύλινο παρκέ μαύρου χρώματος / Μαύρη μοκέτα στα γραφεία και στους χώρους συνεδριάσεων / Κόκκινη μοκέτα στο "κόκκινο" γραφείο συνεδριάσεων / Εποξικό δάπεδο.

Μελέτη/ σχεδιασμός: Colin Seah
Φωτογραφίες: CI&A Photography; Edward Hendricks, Αυτή η διεύθυνση ηλεκτρονικού ταχυδρομείου προστατεύεται από τους αυτοματισμούς αποστολέων ανεπιθύμητων μηνυμάτων. Χρειάζεται να ενεργοποιήσετε τη JavaScript για να μπορέσετε να τη δείτε.
