
Περιέχοντας 72 ενοικιαζόμενα διαμερίσματα, το κτήριο βρίσκεται στη μέση του Overhoeks, μιας δυναμικής περιοχής κατοικίας και εργασίας όπου τα κτίρια και το πράσινο εναλλάσσονται μεταξύ τους σε ένα περιβάλλον που μοιάζει με πανεπιστημιούπολη. Λόγω της πυκνής ανάπτυξης στην περιοχή, η παροχή επαρκούς φυσικού φωτισμού στο επίπεδο του δρόμου ήταν ένας βασικός στόχος σχεδιασμού. Οι εσοχές στους επάνω ορόφους εξασφαλίζουν καλές συνθήκες φωτός ημέρας στους κάτω ορόφους.


Η ταυτότητα του κτιρίου καθορίζεται από ένα λεπτό πλέγμα από κιγκλιδώματα πάχους 7 cm και 880 λεπτές κολώνες από σκυρόδεμα. Οι τελευταίες είναι κατασκευασμένες από σκυρόδεμα υψηλής αντοχής (USHB) που μπορεί να διαμορφωθεί σε πολύ λεπτά εξαρτήματα, δίνοντας στο κτίριο μια όψη σαν πέτρα. “Εργαστήκαμε εντατικά με τον ειδικό στο σκυρόδεμα Hi-Con Nederland για να αναπτύξουμε τα χαριτωμένα, υψηλής αντοχής πάνελ και κολώνες μπαλκονιών για το The Line”, υποστηρίζουν οι μελετητές.
 
“Οι εξωτερικοί χώροι συνδέονται κάθετα με το λεπτό αυτό πλέγμα που τυλίγει τον κύριο όγκο σαν πέπλο.”
Το κέλυφος που τυλίγει τα διαμερίσματα αρθρώνεται με κάθετα προφίλ αλουμινίου που είναι ανοδιωμένα σε ανοιχτόχρωμη απόχρωση χρυσού.
 
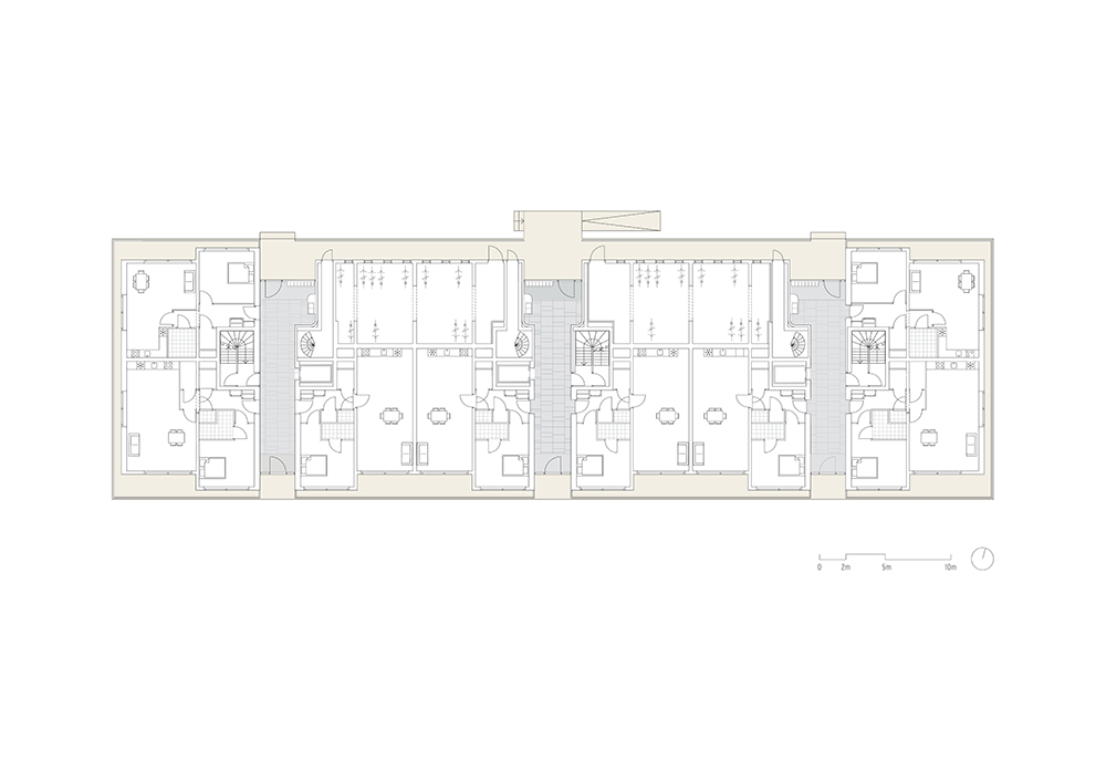
Όλα τα διαμερίσματα είναι προσβάσιμα από τρία κατακόρυφα σημεία κυκλοφορίας, προσβάσιμα μέσω ευρύχωρων χωλ εισόδων φινιρισμένων με υψηλών προδιαγραφών επένδυση από ξύλο βελανιδιάς. Το κτίριο περιέχει μεγάλη ποικιλία διαμερισμάτων, ανάλογα με τη θέση τους μέσα στο κτίριο.

Εξίσου αξιοσημείωτη είναι η βιώσιμη γκάμα υλικών που χρησιμοποιούνται για το The Line, διασφαλίζοντας ότι θα έχει μεγάλη διάρκεια ζωής. Πολλά εξαρτήματα της πρόσοψης μπορούν να αφαιρεθούν και να ανακυκλωθούν εάν και όταν απαιτείται. Τα διαμερίσματα συνδέονται με κοινόχρηστη εγκατάσταση θερμικής αποθήκευσης, η οποία παρέχει ψύξη το καλοκαίρι και θέρμανση το χειμώνα. Επιπλέον, ο κοινόχρηστος κήπος συμβάλλει στη βιοποικιλότητα και στην ευημερία των κατοίκων.
 
Εκτός από το The Line, οι Orange Architects εργάζονται σε ένα άλλο κτίριο κατοικιών, που ονομάζεται Bow, στην περιοχή Overhoeks. Οι κατασκευαστικές εργασίες σε αυτό το κτίριο, που έχει σχεδιαστεί επίσης για την εταιρεία ανάπτυξης ακινήτων Amvest, μόλις ξεκίνησαν.
Στοιχεία του έργου
Όνομα: The Line, Overhoeks
Τοποθεσία: Hammarbystraat 156 - 302, Άμστερνταμ
Σχεδιασμός: 2016 >
Πραγματοποίηση: 2021
Μέγεθος: 7.300 m2
Αρχιτέκτονες: Orange Architects
Πελάτης: Amvest
Ομάδα σχεδιασμού: Jeroen Schipper, Bas Kegge, Julija Osipenko, Αγγελική Χατζοπούλου, Paul Kierkels, Rutger Schoenmaker, Fung Chow, Mario Acosta
Πολεοδόμος: Geurst & Schulze architecten
Σύμβουλοι: Goudstikker De Vries, Mabutec, DGMR, VGG, Buro BIM, JMJ Bouwmanagement
Αρχιτέκτονας τοπίου: Bureau Sant en Co
Ανάδοχος: Bouwbedrijf De Nijs
Σκυρόδεμα: Hi-Con Nederland
Φωτογραφία: Sebastian van Damme
Ευχαριστούμε τους Orange Architects για την παραχώρηση του κειμένου και του φωτογραφικού υλικού.
Απόδοση κειμένου στα ελληνικά: Ιφιγένεια Κωτίτσα, Αρχιτέκτων Μηχανικός
Η Ιφιγένεια Κωτίτσα διατηρεί αρχιτεκτονικό γραφείο και είναι αρθρογράφος αρχιτεκτονικής και interior design στο decobook.gr & decosoup.com. Παράλληλα προσφέρει συμβουλευτικές υπηρεσίες αρχιτεκτονικής και διακόσμησης.
