Από το 2007 το κτίριο, το οποίο ήταν κενό για μεγάλο χρονικό διάστημα, δεν είχε είσοδο από την πλευρά της αγοράς. Με την κατασκευή του παρακείμενου κτηρίου, η αυλή εισόδου του κτιρίου PTT εξαφανίστηκε. Με την επανάχρηση, το κτίριο συνδέεται και πάλι με την πλατεία της αγοράς, η οποία έχει προσελκύσει περισσότερα μητροπολιτικά προγράμματα τα τελευταία χρόνια.

“Τα ύψη των ορόφων περίπου 4,5 μέτρων δίνουν στα διαμερίσματα μια εξαιρετικά ευρύχωρη αίσθηση με υπέροχη θέα στο μητροπολιτικό αστικό τοπίο του Ρότερνταμ”

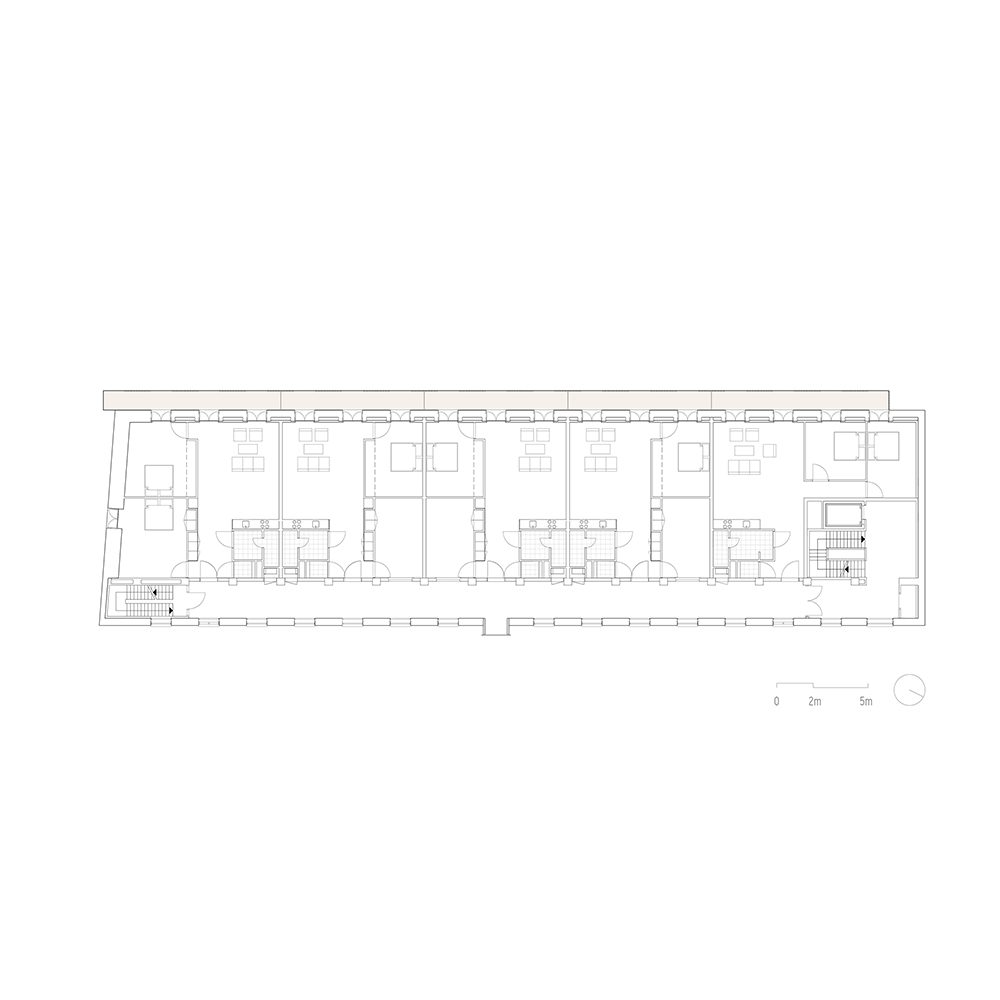
Ο σχεδιασμός περιλαμβάνει είκοσι στούντιο που έχουν δημιουργηθεί στη εντελώς ευρύχωρη δομή. Το ύψος του δαπέδου περίπου 4,5 μέτρων δίνει στα διαμερίσματα μια εξαιρετικά ευρύχωρη αίσθηση. Τα διαμερίσματα επωφελούνται επίσης από την υπέροχη θέα στο μητροπολιτικό αστικό τοπίο του Ρότερνταμ.
Η πρόσοψη που βλέπει στην πλατεία της αγοράς έχει τροποποιηθεί ώστε να δημιουργεί εξωτερικούς χώρους και να προσελκύει περισσότερο φως στο κτίριο. Οι δύο χαμηλότεροι όροφοι έχουν γαλλικά μπαλκόνια, ενώ ένα συνεχές μπαλκόνι τρέχει κατά μήκος του τρίτου ορόφου. Τα διαμερίσματα στα επίπεδο της οροφής με το μεγάλο ύψος διαθέτουν μπαλκόνι στη στέγη.

Τα μπαλκόνια έχουν φινίρισμα από μεταλλικά φύλλα και κιγκλιδώματα με πλέγμα μικρής οπής. Όλες οι προσθήκες όπως τα πλαίσια των κουφωμάτων και τα ανοιγόμενα τμήματα, τα μεταλλικά φύλλα και τα μπαλκόνια έχουν φινίρισμα σε σκούρο καφέ-μαύρο χρώμα, επιτρέποντας στη δεύτερη ζωή του κτηρίου να εκδηλωθεί ως ένα νέο αρχιτεκτονικό layer. Όλα τα ανοίγματα στο ισόγειο έχουν επεκταθεί μέχρι το έδαφος και είναι εξοπλισμένα με ψηλά χαλύβδινα πλαίσια, δημιουργώντας μια σχέση μεταξύ του εσωτερικού του εστιατορίου και της βεράντας της αγοράς. Χάρη στα σκουρόχρωμα μεταλλικά προφίλ, οι νέες είσοδοι στην αγορά έρχονται σε αντίθεση με την πρόσοψη από τούβλα.
Τα πλακάκια της στέγης από την πλευρά της αγοράς έχουν αντικατασταθεί από φωτοβολταϊκά πάνελ σε ουδέτερο, σκούρο χρώμα. Ως αποτέλεσμα, είναι πρακτικά αόρατα και διατηρείται η υψηλής ποιότητας αισθητική εμφάνιση της στέγης. Η ιδέα για την ενεργειακή απόδοση έχει προσαρμοστεί για αυτό το κτίριο. Η υπολειπόμενη θερμότητα από τον εξοπλισμό των δεδομένων των διακομιστών της KPN στο υπόγειο χρησιμοποιείται για την προθέρμανση του νερού της βρύσης και για τη θέρμανση των δαπέδων στα διαμερίσματα και το εστιατόριο. Το νερό θερμαίνεται επίσης με ηλιακούς λέβητες στην επίπεδη οροφή στο πίσω μέρος του κτηρίου. Το κτίριο θερμαίνεται και ψύχεται με ηλεκτρικές αντλίες θερμότητας. Παράγεται αρκετή ενέργεια για την κάλυψη των αναγκών σχεδόν όλων των διαμερισμάτων και μερικών αναγκών του εστιατόριου.
Το κτίριο προτάθηκε για το Βραβείο Αρχιτεκτονικής του Ρότερνταμ 2019 μαζί με εννέα άλλα υποψήφια.
Στοιχεία κτιρίου
Όνομα: PTT Binnenrotte
Τοποθεσία: Rotterdam, Ολλανδία
Μελέτη: 2017
Υλοποίηση: 2019
Συνολική επιφάνεια: 3.585 m2
Αρχιτέκτονες: Orange Architects
Πελάτης: Ιδιώτης
Σύμβουλοι έργου: Nick Nieuwenhuizen, Ingenieursbureau IOB, De Mik Adviesbureau, LBP | SIGHT, S&W Consultancy, BOAG
Κατασκευαστής: BIK Bouw
Φωτοβολταϊκά πάνελ στέγης: Exasun, Wattco
Φωτογραφία: Ossip van Duivenbode, Frank Hanswijk, Orange Architects
Ευχαριστούμε τους Orange Architects για την παραχώρηση του κειμένου και του φωτογραφικού υλικού.
Απόδοση κειμένου στα ελληνικά: Ιφιγένεια Κωτίτσα, Αρχιτέκτων Μηχανικός
Η Ιφιγένεια Κωτίτσα διατηρεί αρχιτεκτονικό γραφείο και είναι αρθρογράφος αρχιτεκτονικής και interior design στο decobook.gr & decosoup.com. Παράλληλα προσφέρει συμβουλευτικές υπηρεσίες αρχιτεκτονικής και διακόσμησης.
