Εξαιρετικό παράδειγμα σχεδιασμού μιας κατοικίας που ανταποκρίνεται απόλυτα στις ανάγκες των ιδιοκτητών αποτελεί το loft που σχεδίασαν οι i29 architects για ένα ζευγάρι συγγραφέα και συλλέκτη έργων τέχνης.
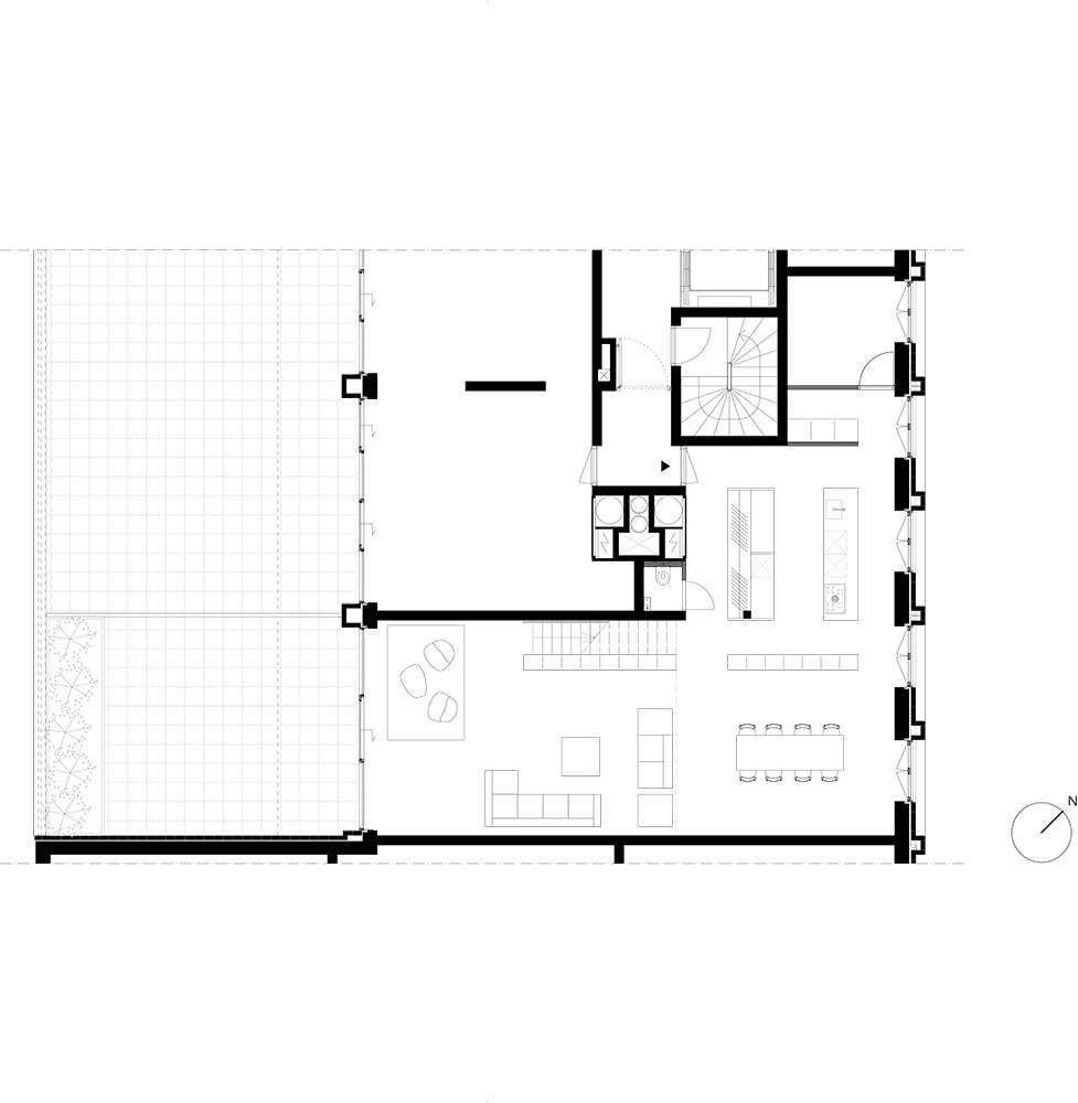
Σε μια πρώην βιομηχανική περιοχή στα βόρεια του Άμστερνταμ κτίστηκε μια πολυκατοικία που προσφέρει σε όλους τους ιδιοκτήτες την ελευθερία να σχεδιάσουν το χώρο τους. Ένας ανοικτός χώρος με ύψος δύο ορόφων χωρίς προκαθορισμένη εσωτερική διαρρύθμιση έδωσε στους μελετητές τη δυνατότητα να πραγματοποιήσουν μία λύση προσαρμοσμένη αποκλειστικά στα μέτρα του ζευγαριού.
 
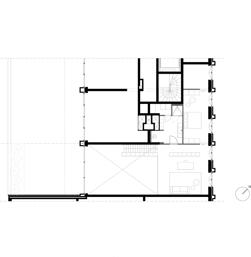
“Η προβολή των έργων τέχνης αποτέλεσε για μας την αφετηρία σχεδιασμού, έτσι σχεδιάσαμε ντουλάπια ύψους δύο ορόφων με ενσωματωμένες γυάλινες προθήκες για την προβολή των έργων τέχνης” αναφέρουν οι μελετητές.

Στο ισόγειο βρίσκονται ο χώρος της εισόδου, η κουζίνα και το καθιστικό σε οργάνωση ανοιχτής κάτοψης, ενώ εκμεταλλευόμενοι το διπλό ύψος του χώρου διαμορφώνουν ένα επίπεδο παταριού που φιλοξενεί ένα υπνοδωμάτιο, ένα γραφείο και ένα μπάνιο. Τα μεγάλου ύψους ντουλάπια συνδέουν οπτικά τα δύο επίπεδα λειτουργώντας ως διαχωριστικό και κρύβουν την εσωτερική σκάλα που συνδέει τα δύο επίπεδα.


Όλες οι κατά παραγγελία κατασκευές, κουζίνα και ντουλάπια στο διαμέρισμα έχουν φινιρίσματα σε συνδυασμό επιφανειών από ξύλο και ματ γκρίζου χρώματος. Οι λιτές και απλές χωρικές παρεμβάσεις έρχονται σε αντίθεση με τα πολύχρωμα έργα τέχνης ισορροπούν και αλληλοσυμπληρώνονται, ενώ η λαμπερή λιτότητα του ρητινούχου δαπέδου ενοποιεί και αναδεικνύει το αρμονικό σύνολο χρωμάτων και υφών.



Πελάτης: Ιδιωτικό
Σχεδιασμός: i29
Αντικείμενο: Διαμέρισμα
Επιφάνεια: 180 m2
Κατασκευαστής: Dubbeldam bouw
Κατασκευαστής εσωτερικού χώρου: Coen Vleugel
Φωτογραφία: i29 / Ewout Huibers
Καλλιτέχνες: Koen Taselaar, Lidy Jacobs, Ettore Sottsass, Gae Aulenti, Sigmar Polke, Ina van Zyl, Paul van der Eerden, Caroline Walker, Wiki Somers, Morgan Betz, Johan Tahon, Arditi, Gianni Gamberini, Gianfranco Fini, Anna Aagaard Jensen, John Baldessari
Επίπλωση: Konstantin Grcic & Ray, Charles Eames, Hella Jongerius, Dirk van der Kooij
Ευχαριστούμε τους i29 Architects για την παραχώρηση του κειμένου και του φωτογραφικού υλικού.
Απόδοση κειμένου στα ελληνικά: Ιφιγένεια Κωτίτσα, Αρχιτέκτων Μηχανικός
Η Ιφιγένεια Κωτίτσα διατηρεί αρχιτεκτονικό γραφείο και είναι αρθρογράφος αρχιτεκτονικής και interior design στο decobook.gr & decosoup.com. Παράλληλα προσφέρει συμβουλευτικές υπηρεσίες αρχιτεκτονικής και διακόσμησης.
