Όπως ο Le Corbusier περιέγραψε στο “Vers Une Architecture” ή ο Mies εκπόνησε τα έργα του στο Σικάγο, ο στόχος και το αποτέλεσμα μιας τέτοιας διαδικασίας είναι μια φυσικότητα και ευκολία που φαίνεται αναπόφευκτη. Και οι δύο αρχιτέκτονες αντιμετωπίζουν τη φύση με την ίδια ειλικρίνεια, όπως η βιομηχανία κατασκευής μεταλλικών κτιρίων. Και οι δύο αυτοί δάσκαλοι του μοντερνισμού και η βιομηχανία κτιρίων από χάλυβα αντιμετωπίζουν τη φόρμα σαν το κατάλληλο και αναπόφευκτο εκφραστή μιας εσωτερικής βούλησης, που εφαρμόζεται αυστηρά και βασίζουν τις κρίσεις αξιών σε συνήχηση με αυτή τη βούληση, παρά με την καινοτομία ή τη γοητεία.
Πρόκειται για καμπίνα ολιγοήμερων διακοπών στη λίμνη Donner στη βόρεια California, την οποία οι ιδιοκτήτες χρησιμοποιούν για οικογενειακές συγκεντρώσεις 2 φορές το χρόνο: μία το χειμώνα για σκι και μία το καλοκαίρι για θαλάσσια sports. Το οικόπεδο έντονα δασώδες με εξαιρετική θέα προς τη λίμνη και τη γύρω περιοχή. Η πρόσβαση στην κατοικία γίνεται μέσω ενός διαδρόμου που αρχίζει από το parking και καταλήγει στην κατοικία. Εξασφαλίζεται με αυτό τον τρόπο η αίσθηση απομόνωσης και αποκλειστικότητας.
Οι αρχιτέκτονες κλήθηκαν να ετοιμάσουν εναλλακτικά σχέδια για αυτό το οικόπεδο από το βασικό διάγραμμα που παρείχε ο πελάτης. Αυτό το διάγραμμα περιελάμβανε ένα μεγάλο χώρο καθιστικού που συνδυάζει σαλόνι, τραπεζαρία, πρόχειρο καθιστικό και μια ξεχωριστή πτέρυγα υπνοδωματίων. Οι δύο λύσεις που προέκυψαν διερευνούν διάφορες προσαρμογές του βασικού σκεπτικού στο οικόπεδο. Το αρχικό σκίτσο του πελάτη πρότεινε μια επίπεδη λύση, αλλά οι επιτόπιες συνθήκες παρουσίαζαν την ευκαιρία να επανεξετάσουν οι αρχιτέκτονες την κάθετη χωροθέτηση των λειτουργιών ανά επίπεδο, που διαμορφώνει αντίστοιχα το ποσοστό κάλυψης, την πρόσβαση και τη θέση εισόδου στην κατοικία.
Donner Lake Cabin#

Η λύση # επικεντρώνεται στην επιλογή δύο όγκων επάλληλων, ο υψηλότερος που περιλαμβάνει τους χώρους διημέρευσης μετατοπίστηκε από το κέντρο του χαμηλότερου και περιστράφηκε προς τη θέα. Στο χώρο που προκύπτει από την αλληλοτομία των δύο όγκων βρίσκεται ένας θερμικός θάλαμος που τροφοδοτείται από τα καπναέρια των δύο τζακιών και συνεισφέρει στη θέρμανση του χώρου.

Ο επάνω όγκος είναι τοποθετημένος σε ένα δικτύωμα από οξειδωμένο χάλυβα που στηρίζεται σε 4 υποστυλώματα, που διαπερνούν τον κατώτερο όγκο, ενώ πρόβολοι εκατέρωθεν δίνουν την αίσθηση ότι αιωρείται πάνω από τον κατώτερο όγκο που στηρίζεται στο έδαφος και εκμεταλλεύεται τη θέα.
Donner Lake Cabin*

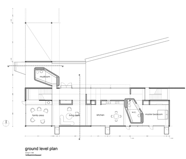
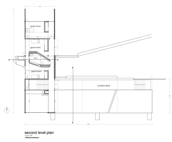
Η λύση * οργανώνεται σε δύο γραμμικούς ορόφους τον ένα πάνω στον άλλο τοποθετημένους κατά μήκος των κύριων αξόνων του οικοπέδου. Στη λύση αυτή οι χώροι διαβίωσης χωροθετούνται στο κατώτερο επίπεδο που είναι στραμμένο προς την κύρια θέα. Στην οροφή του χαμηλότερου όγκου δημιουργείται μια μεγάλη βεράντα. Στην αλληλοτομία των δύο όγκων στη γωνία δημιουργείται ένας χώρος διπλού ύψους, όπου χωροθετούνται η κατακόρυφη επικοινωνία (σκάλα) και το τζάκι. Το λεβητοστάσιο και ένας χώρος αποθήκευσης προβλέπονται κάτω από τον χαμηλότερο όγκο.

Αν και η κατοικία εντάσσεται τυπολογικά στην καμπίνα, διαφοροποιείται από αυτή, καθώς αρνείται την κλασική ξύλινη στέγη με την έντονη κλίση, λόγω χιονόπτωσης. Η εφαρμογή σύγχρονης τεχνολογίας και η χρήση μεταλλικού σκελετού αξιοποιεί τη μονωτική ικανότητα του χιονιού, αντί να το απορρίπτει, σύμφωνα με τους αρχιτέκτονες.


Σχεδίαση κατόψεων: Ιφιγένεια Κωτίτσα, φοιτήτρια Αρχιτεκτονικής
Ευχαριστούμε θερμά τους Jones, Partners: Architecture για την παραχώρηση του κειμένου και του φωτογραφικού υλικού
Οι Jones, Partners: Architecture είναι αρχιτεκτονικό γραφείο με έδρα το Los Angeles, με διεθνή φήμη για το σχεδιασμό έντονων τεχνολογικά χώρων. Στα έργα τους περιλαμβάνονται κατοικίες σε όλες τις ΗΠΑ, καθώς και κτίρια γραφείων και κέντρα τηλεπικοινωνιών στο Σαν Φρανσίσκο, γραφεία εταιριών στην Κουάλα Λουμπούρ, ένα Εθνικό Μνημείο στο Διαστημικό Κέντρο Κένεντι, για να μην αναφέρουμε μια μονάδα παραγωγής ενέργειας, κτίριο γραφείων και εγκαταστάσεων του Πανεπιστημίου της Καλιφόρνια, στο Λος Άντζελες, ένα καφέ στο Pittsburg και μεγάλη δημόσια σκάλα στο Σινσινάτι.
Οι επικεφαλής της εταιρίας έχουν δώσει διαλέξεις σχετικά με την τεχνολογία και το έργο του γραφείου σε όλο τον κόσμο και δίδαξαν σε σχολές αρχιτεκτονικής σε πολλά κορυφαία πανεπιστήμια. Το Princeton Architectural Press έχει δημοσιεύσει δύο μονογραφίες του έργου, το Instrumental Form, που καλύπτει τα πρώτα δέκα χρόνια της εταιρίας. και το El Segundo, που ασχολείται με τα επόμενα οκτώ.
Jones, Partners: Architecture
800 McGarry St, #436 Los Angeles, CA, 90021
Αυτή η διεύθυνση ηλεκτρονικού ταχυδρομείου προστατεύεται από τους αυτοματισμούς αποστολέων ανεπιθύμητων μηνυμάτων. Χρειάζεται να ενεργοποιήσετε τη JavaScript για να μπορέσετε να τη δείτε.

                
                
                
                                






                
                                






