Διαμόρφωση Ξενοδοχείου στο κέντρο της Αθήνας

Από τους: Θεοφάνη Ρούσσο, Αλίκη-Μαρία Αρχοντάκη και Φώτη Γιαννακόπουλο.

Project στα πλαισια του μαθήματος Design (Διαμόρφωση εσωτερικών χώρων)

Σχολή: ΑΤΕΙ Αθήνας τμήμα Εσωτερικής Αρχιτεκτονικής

Μάθημα: Design (διαμόρφωση εσωτερικών χώρων)

Τα δεδομένα:

Το θέμα του project αφορούσε τη μελέτη ενός ξενοδοχείου, στο κέντρο της Αθήνας, ακριβώς απέναντι από τον εθνικό κήπο. Το ζητούμενο ήταν η διαμόρφωση και ο σχεδιασμός των κοινόχρηστων εσωτερικών χώρων και ενός τυπικού δωματίου.

Στόχος:

Θέλαμε να δημιουργήσουμε ένα περιβάλλον ηρεμίας και χαλάρωσης, για τους χρήστες, μέσα από τα χρώματα και τις μορφές στο χώρο. Ένα καταφύγιο στο κέντρο της πόλης.

Η πρόταση:

Τα χρώματα και οι φόρμες που χρησιμοποιούμε προέρχονται από τον εθνικό κήπο.

Επεξεργαστήκαμε όλες τις πληροφορίες, απλοποιώντας φόρμες και δανειστήκαμε κάποιες ματιέρες τις φύσης και των ζώων, θέλοντας να δημιουργήσουμε ένα σύγχρονο χώρο διαμονής και εστίασης.

Reception

Το πιο δυναμικό στοιχείο σε όλο το χώρο είναι η reception ( το πιο σημαντικό κομμάτι σ’ ένα ξενοδοχείο), η οποία αποτελείται από επαναλαμβανόμενα κάθετα στοιχεία που εκτείνονται από την οροφή και τον τοίχο ως το πάτωμα, όπου σχηματίζουν και τον πάγκο εξυπηρέτησης. Αυτά τα στοιχεία εμφανίζονται και στους υπόλοιπους χώρους, ως τρισδιάστατες εφαρμογές στους τοίχους ή στα υποστηλώματα, ως διαχωριστικά στοιχεία κτλ.

H Reception του ξενοδοχείου

Lobby

Η επίπλωση είναι λιτή με οργανικά στοιχεία και εντάσσεται σε ένα περιβάλλον ουδέτερο με έντονα χρωματικά στοιχεία.Το lobby παρέμεινε ανάλαφρο για να ξεκουράζει τον επισκέπτη απο την βαβούρα της πόλης.

Ο χώρος αναμονής και υποδοχής των επισκεπτών (Lobby)

Cafe-bar

Το cafe-bar που τοποθετείται στο βάθος του ισογείου δεν ξεφεύγει απο την σχεδιαστική γραμμή που έχει ακολουθηθεί στα υπόλοιπα μέρη του ξενοδοχείου (reception, lobby κτλ).

Το Cafe-bar στο ισόγειο του κτιρίου

Εστιατόριο

Στο πατάρι του ξενοδοχείου υπάρχει το εστιατόριο, το οπόιο έχει θέα στον εθνικό κήπο καθώς και στην εντυπωσιακή reception.

Το εστιατόριο στο πατάρι του ξενοδοχείου

Ενα εσωτερικό μπαλκόνι που "βλέπει" από το πατάρι προς τη Reception του ισογείου

Χώρος συνεδριάσεων

Στο υπόγειο υπάρχει αίθουσα συνεδρίων, με τον απαραίτητο χώρο αναμονής.

Ο χώρος συνεδριάσεων

Ο χώρος αναμονής

Δωμάτιο

Η σχεδίαση του δωματίου ακολουθεί εκείνη των βασικών κατόψεων (ισόγειου, υπογείου και παταριού) του ξενοδοχείου. Η διαρύθμιση του είναι άκρως λειτουργική και εκμεταλλεύεται στο έπακρο την θέα του δωματίου προς τον εθνικό κήπο.

Το τυπικό δωμάτιο του ξενοδοχείου

Προοπτική κάτοψη του δωματίου και του μπάνιου

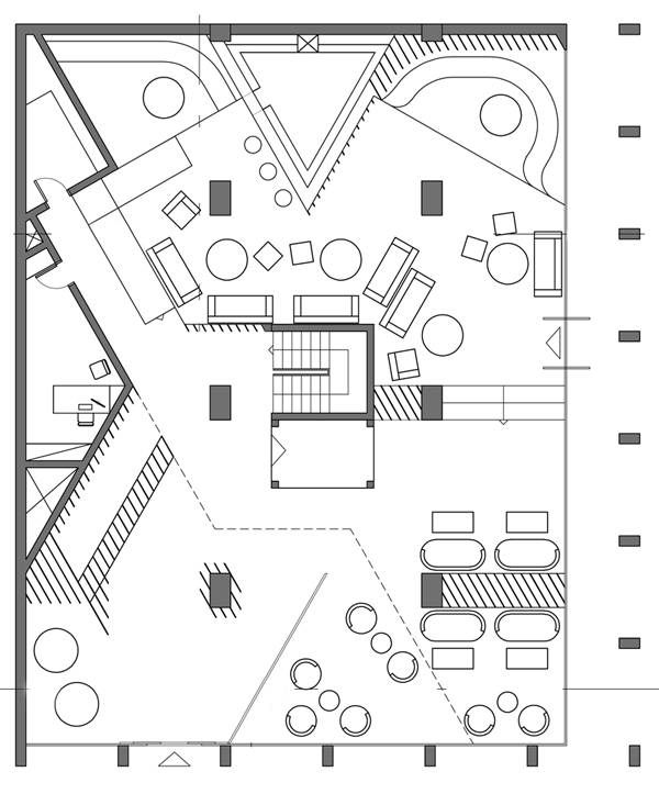
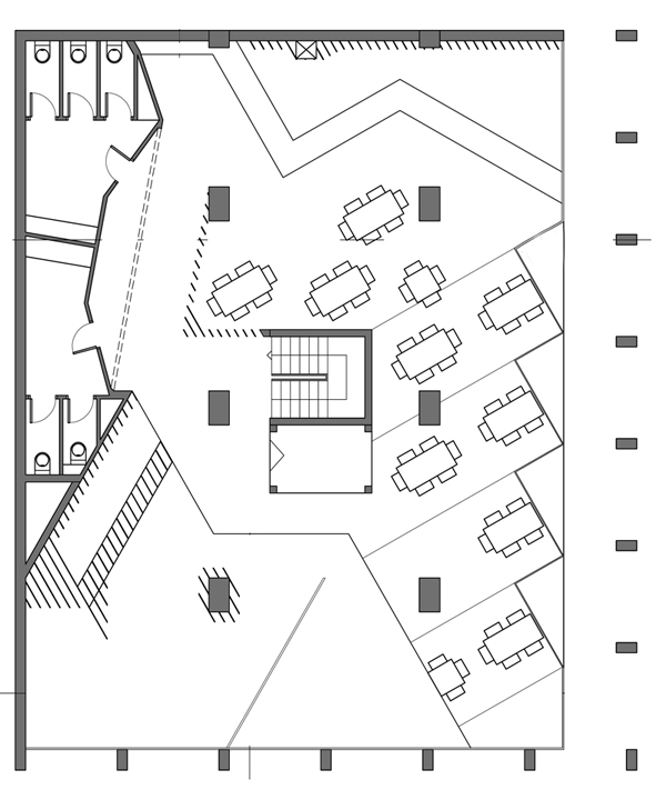
Κατόψεις

Η κάτοψη του υπογείου

Η κάτοψη του ισογείου

Η κάτοψη του παταριού

Ομάδα μελετητών: taf design (Θεοφάνης Ρούσσος, Αλίκη-Μαρία Αρχοντάκη, Φώτης Γιαννακόπουλος)

e-mail: Αυτή η διεύθυνση ηλεκτρονικού ταχυδρομείου προστατεύεται από τους αυτοματισμούς αποστολέων ανεπιθύμητων μηνυμάτων. Χρειάζεται να ενεργοποιήσετε τη JavaScript για να μπορέσετε να τη δείτε.

website: www.tafdesign.gr

Σχετικά Άρθρα

  • Ανακαίνιση σπιτιού: Μια μοναδική ευκαιρία να αλλάξετε την χρωματική παλέτα του χώρου Ανακαίνιση σπιτιού: Μια μοναδική ευκαιρία να αλλάξετε την χρωματική παλέτα του χώρου
    traditional kitchen
    Photo by Brett Mickan Interior Design - Look for transitional kitchen design inspiration

    Αν αισθάνεστε συχνά άγχος και στρες σε κάποιο χώρο του σπιτιού σας, όπως για παράδειγμα στο καθιστικό ή στο γραφείο, ή αν αντιμετωπίζετε προβλήματα με τον ύπνο, ίσως είναι καιρός να σκεφτείτε την επίδραση που έχουν τα χρώματα στην ψυχολογία σας. Τα χρώματα στους εσωτερικούς χώρους βρίσκονται παντού, στο δάπεδο, στην οροφή, στους τοίχους, στα έπιπλα, στα μικροαντικείμενα, στα υφάσματα και αλλού. Ωστόσο, οι βαμμένοι τοίχοι αποτελούν εκείνες τις επιφάνειες που καθορίζουν σημαντικά την χρωματική παλέτα ενός χώρου.

  • Διακοσμήστε του τοίχους σας με πίνακες ζωγραφικής, φωτογραφίες κτλ και ανανεώστε το χώρο σας Διακοσμήστε του τοίχους σας με πίνακες ζωγραφικής, φωτογραφίες κτλ και ανανεώστε το χώρο σας

    Οι τοίχοι σε ένα εσωτερικό χώρο, αποτελούν τις ιδανικές επιφάνειες, πάνω στις οποίες μπορείτε να αναρτήσετε μια πλειάδα αντικειμένων, όπως ζωγραφικά έργα, κολάζ, φωτογραφίες, διακοσμητικά αντικείμενα, αντικείμενα design κτλ. Για την ακρίβεια οι λύσεις και οι ιδέες είναι τόσες πολλές. που είναι σχεδόν αδύνατον να μην βρείτε την ιδανική λύση για το δικό σας γούστο και στιλ.

  • Πέργκολες – Διακοσμητικός χαρακτήρας και λειτουργικότητα στον κήπο Πέργκολες – Διακοσμητικός χαρακτήρας και λειτουργικότητα στον κήπο

    Όταν ο καιρός το επιτρέπει – και στην χώρα αυτό γίνεται τις περισσότερες μέρες τον χρόνο- η απόλαυση της χαλάρωσης κάτω από τον ήλιο είναι ασύγκριτης αξίας. Φέτος διαμορφώστε τον κήπο σας με τον καλύτερο τρόπο, τοποθετώντας μία μοντέρνα λύση σκίασης που σας επιτρέπει να κάθεστε υπό σκιά όλες τις ώρες της ημέρας.

Decobook.gr

© Copyright 2010 - DecoBook. All Rights Reserved