

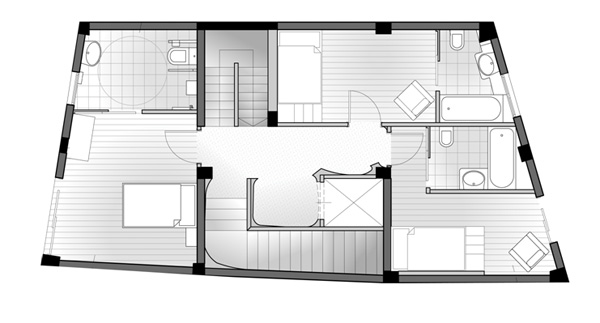
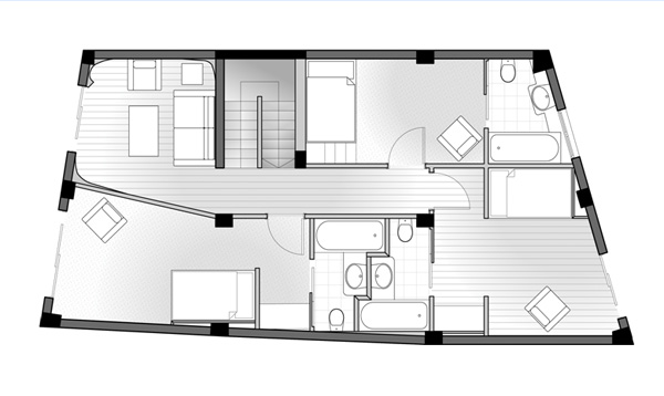
Στους άλλους δύο ορόφους του ξενώνα έχουμε τα δωμάτια. Συνολικά υπάρχουν έξι δωμάτια, τρία ανά όροφο ενώ στον τρίτο όροφο υπάρχει και ένα μικρό σαλονάκι. Οι δύο πρώτοι όροφοι ενώνονται εκτός από την σκάλα και με ανελκυστήρα για λόγους εξυπηρέτησης ατόμων με ειδικές ανάγκες.


Στους άλλους δύο ορόφους του ξενώνα έχουμε τα δωμάτια. Συνολικά υπάρχουν έξι δωμάτια, τρία ανά όροφο ενώ στον τρίτο όροφο υπάρχει και ένα μικρό σαλονάκι. Οι δύο πρώτοι όροφοι ενώνονται εκτός από την σκάλα και με ανελκυστήρα για λόγους εξυπηρέτησης ατόμων με ειδικές ανάγκες.

Κατά καιρούς κάποιοι καλλιτέχνες ανά τον κόσμο έχουν δημιουργήσει δωμάτια ως τρόπο έκφρασης. Κάποια από αυτά αποτέλεσαν έκθεμα σε έκθεση είτε γλυπτικής είτε ζωγραφικής. Στα έξι δωμάτια λοιπόν έχει γίνει πιστή μεταφορά μερικών από αυτών των χώρων προσπαθώντας έτσι να μυήσουμε τον επισκέπτη σε αυτό που ήθελε να εκφράσει ο εκάστοτε καλλιτέχνης με την δημιουργία του.

Τα έργα που έχουν χρησιμοποιηθεί για τους χώρους είναι το redshift του Cildo Meirelles, το sollie 17 των Edward & Nancy Kienzholz, το pharmachy room του Damien Hirst, το everyone i have ever slept with της Tracy Amin, το cell της Louise Bourgeois και το dead house ur του Gragor Scnheider. Στην πόρτα του κάθε δωματίου αντί αριθμού αναγράφεται ο τίτλος του έργου ενώ εντός υπάρχουν πληροφορίες για τον αντίστοιχο καλλιτέχνη.
Σοφία Δημουλά - e-mail: Αυτή η διεύθυνση ηλεκτρονικού ταχυδρομείου προστατεύεται από τους αυτοματισμούς αποστολέων ανεπιθύμητων μηνυμάτων. Χρειάζεται να ενεργοποιήσετε τη JavaScript για να μπορέσετε να τη δείτε.
website: www.wix.com/sofiadimoula/id

                
                
                
                                




