Ο πύργος αποτελεί μέρος ενός σχεδίου αναδιάρθρωσης της γειτονιάς Kerckebosch στο Zeist και είναι η τελευταία από μια σειρά νέων πολυκατοικιών σε μια από τις πράσινες ζώνες στην άκρη του δάσους.
Η καταπράσινη και δασώδης περιοχή και το αμμώδες έδαφος έδωσαν την άμεση έμπνευση για το σχεδιασμό του οικιστικού πύργου. Η ιδέα και η υλική επεξεργασία του πύργου βασίζονται στα θέματα «άμμος», «κορμός δέντρου» και «φύλλο». Η στοίβαξη των παραπάνω θεμάτων ως στρώσεις δημιούργησε το σχεδιασμό. Έτσι, ο πύργος διαβάζεται ως ακανόνιστη στοίβα μπαλκονιών και στηθαίων, που ενσωματώνονται φυσικά στο δασώδες περιβάλλον. Ταυτόχρονα, είναι ένα ορόσημο που υποδηλώνει την είσοδο στο Kerckebosch.


Η ιδέα
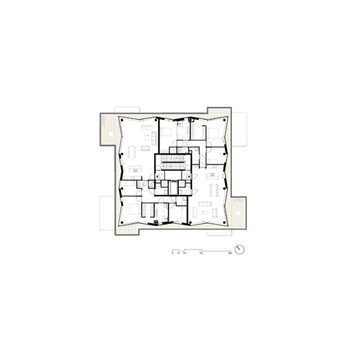
Το κτίριο έχει τα θεμέλια του στο καταπράσινο περιβάλλον του. Προσβάσιμη μέσω ενός ελαφρώς κεκλιμένου δασικού μονοπατιού, η είσοδος βρίσκεται εκεί όπου η γωνιακή πρόσοψη διπλώνει προς τα μέσα για να δημιουργήσει ένα ελκυστικά σχεδιασμένο άνοιγμα. Αμέσως στο εσωτερικό, οι επισκέπτες εισέρχονται σε μια διώροφη αίθουσα με θέα στον περιβάλλοντα χώρο και στον κεντρικά τοποθετημένο πυρήνα, που περιλαμβάνει τους ανελκυστήρες και τις σκάλες προς τα διαμερίσματα.

Κάτοψη ισογείου
«Η ιδέα και η υλική επεξεργασία του πύργου βασίζονται στα θέματα «άμμος», «κορμός δέντρου» και «φύλλο». Η στοίβα αυτών των θεμάτων ως στρώσεων το ένα πάνω στο άλλο δημιούργησε το σχεδιασμό »

Μέσα στο δάσος

Πρόσοψη προοπτικά


Η είσοδος εξωτερικά Η είσοδος εσωτερικά

Τομή

Ανάμεσα στις κορυφές των δέντρων
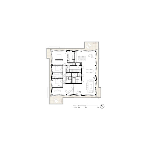
Ο πύργος έχει γλυπτική εμφάνιση, αλλά συντίθεται επίσης μέσα σε ένα ορθολογικό κάνναβο, με τη δομή στήριξης να αποτελείται από τον κεντρικό πυρήνα και τις κολώνες της πρόσοψης. Αυτή η δομή εκτείνεται μέχρι του υπόγειο χώρο στάθμευσης, όπου βρίσκονται και οι αποθηκευτικοί χώροι των διαμερισμάτων. Το κτίριο διαθέτει 10 ορόφους πάνω από το έδαφος, με δύο διαμερίσματα σε σχήμα L συμμετρικά τοποθετημένα σε κάθε όροφο, τα οποία περιστρέφονται κατά 90 μοίρες σε σχέση με τον υποκείμενο όροφο. Εξαίρεση αποτελεί ο τελευταίος όροφος, που διαθέτει ένα ρετιρέ με θέα στο περιβάλλον 360 μοιρών.

Κάτοψη τυπικού ορόφου

Κάτοψη του penthouse (ρετιρέ)

Λεπτομέρεια γωνιακού μπαλκονιού

Ζιγκ ζαγκ όψης

Λεπτομέρεια όψης
Τα διαμερίσματα διαθέτουν ευρύχωρους εξωτερικούς χώρους από όλες τις πλευρές. Οι εναλλασσόμενες προεξοχές του δαπέδου δημιουργούν «εξωτερικούς χώρους» σε στρατηγικά σημεία. Εδώ, τα όρια μεταξύ εσωτερικού και εξωτερικού φαίνεται θολώνουν, επιτρέποντας στο δασώδες περιβάλλον να ενσωματωθεί στην εμπειρία διαβίωσης σε αυτή την ξεχωριστή τοποθεσία. Επειδή τα διαμερίσματα σε κάθε όροφο είναι συμμετρικά, οι εξωτερικοί χώροι σε κάθε επίπεδο τοποθετούνται διαφορετικά.

Οι πρόβολοι των εξωστών

Ο εξωτερικός χώρος των προβόλων

Λεπτομέρεια κιγκλιδώματος
Το θέμα της «άμμου» περιλαμβάνει τα στηθαία και τις βεράντες του μπαλκονιού. Οι εξωτερικές οροφές σχεδιάζονται ως μέρος του θέματος «φύλλα», παίρνοντας τη μορφή ενός άτυπου πράσινου φινιρίσματος σε όλες τις οροφές των μπαλκονιών και των προβόλων. Τέλος, οι κολώνες στήριξης και η ξύλινη επένδυση Fraké της πρόσοψης διαμορφώνονται ως μέρος του θέματος «κορμός δέντρου».

Ο πύργος στο λοφώδες τοπίο

Το πρόγραμμα βιωσιμότητας
Ο σχεδιασμός τοπίου που περιβάλλει το κτίριο στοχεύει στη διατήρηση και ενίσχυση της υπάρχουσας βιοποικιλότητας και των ποιοτήτων του φυσικού περιβάλλοντος. Φυτεύοντας μια πλούσια ποικιλία τοπικών ειδών στο ημιυπόγειο χώρο στάθμευσης, το δάσος επεκτείνεται μέχρι τις προσόψεις του κτιρίου. Εκτός από τη φύτευση, έχουν εφαρμοστεί διάφορες άλλες σχεδιαστικές λύσεις για να ενσωματωθεί ο χώρος στάθμευσης στο τοπίο: χρήση βιομπλοκ χλοοτάπητα για την επένδυση των τοίχων αντιστήριξης, ανοιχτή πλακόστρωση για τις θέσεις στάθμευσης και κορμούς δέντρων ως δομές αντιστήριξης. Το νερό της βροχής που συλλέγεται από την οροφή και τις βεράντες κατευθύνεται στους κοντινούς χώρους αποστράγγισης.
Το κτίριο έχει σχεδιαστεί με γνώμονα τις μεταβαλλόμενες ανάγκες, τη βιώσιμη χρήση υλικών και την αποδοτική κατανάλωση ενέργειας. Η δομή του κτιρίου από υποστυλώματα προσφέρει ευελιξία και προσαρμοστικότητα για μελλοντική χρήση. Η επένδυση από βιώσιμο ξύλο Fraké και τα πολύ λεπτά προκατασκευασμένα πάνελ GRC είναι εύκολα αποσυναρμολογούμενα και επαναχρησιμοποιήσιμα στοιχεία της πρόσοψης. Ένα συλλογικό σύστημα γεωθερμικής αντλίας θερμότητας, με βρόχους στο έδαφος για θέρμανση και ψύξη, φωτοβολταϊκά πάνελ στη στέγη, τριπλά τζάμια, εξωτερική ηλιοπροστασία και σύστημα εξαερισμού με ανάκτηση θερμότητας, διασφαλίζουν μια ιδέα βιώσιμης ενέργειας που ανταποκρίνεται πλήρως στα πρότυπα «Σχεδόν μηδενικής ενέργειας κτιρίου» (NZEB).
Από την είσοδο του συγκροτήματος των διαμερισμάτων μέχρι τους εξωτερικούς χώρους τους, όλοι οι όροφοι είναι χωρίς κατώφλι, εξασφαλίζοντας βέλτιστη προσβασιμότητα για όλες τις ηλικιακές ομάδες και άτομα με κινητικά προβλήματα. Τεράστια πανοραμικά παράθυρα και πολύ ευρύχωρα μπαλκόνια προσφέρουν χαλαρωτική θέα και σύνδεση με τη φύση.


Μέσα στο δάσος
Στοιχεία του έργου
Τοποθεσία: Zeist, The Netherlands
Σχεδιασμός: 2019
Υλοποίηση: 2024
Μέγεθος: 4.400 m2
Πρόγραμμα: Οικιστικό
Αρχιτέκτονες: Orange Architects
Εργασία: Ανάθεση
Πελάτης: Slokker Vastgoed BV & NCB-Projectrealisatie
Ομάδα σχεδιασμού: Jeroen Schipper, Julija Osipenko, Rik Meijer, Max Hissink, Dirk Jansen,
Rutger Schoenmaker, Angeliki Chantzopoulou, MatildeMiuzzi, Frank Schulze,
Maria Gómez Garrido, KapilanChandranesan
Πολεοδόμος: wUrck
Σύμβουλοι: IMD Raadgevende Ingenieurs, Goudstikker De Vries, Huygen Installatie Adviseurs, ABT
Ανάδοχος: Slokker Bouwgroep
Φωτογραφία: Sebastian van Damme
Ευχαριστούμε τους Orange Architects για την παραχώρηση του κειμένου και του φωτογραφικού υλικού.
Απόδοση κειμένου στα ελληνικά: Ιφιγένεια Κωτίτσα, Αρχιτέκτων Μηχανικός
Η Ιφιγένεια Κωτίτσα διατηρεί αρχιτεκτονικό γραφείο και είναι αρθρογράφος αρχιτεκτονικής και interior design στο decobook.gr & decosoup.com. Παράλληλα προσφέρει συμβουλευτικές υπηρεσίες αρχιτεκτονικής και διακόσμησης
