Το σπίτι μας είναι ο χώρος που περνούμε τον περισσότερο χρόνο μας, οπότε είναι ζητούμενο να είναι λειτουργικό, άνετο και καλαίσθητο. Η επιλογή των επίπλων εξαρτάται από τις προσωπικές προτιμήσεις και το στυλ μας. Ωστόσο, η χωροθέτηση τους παίζει ουσιαστικό ρόλο στη διαμόρφωση και την ατμόσφαιρα του χώρου. Ένας καλά ισορροπημένος χώρος εκτός από την αισθητική διακρίνεται για τη λειτουργικότητα του. Επιπλέον η σωστή τοποθέτηση των επίπλων μπορεί να επηρεάσει την ψυχολογία, τα συναισθήματα και τη συμπεριφορά μας.
Παρακάτω αναλύουμε μερικές βασικές αρχές για επιτυχημένη χωροθέτηση επίπλων.
Πώς η Χωροθέτηση Επηρεάζει τη Λειτουργικότητα
Η βελτιστοποίηση της λειτουργικότητας και της κυκλοφορίας στο χώρο αποτελούν ένα από τους βασικούς στόχους της χωροθέτησης των επίπλων. Η σωστή διάταξη εξασφαλίζει απρόσκοπτη και αβίαστη ροή των ενοίκων, οπότε ο κάθε χώρος γίνεται πιο ευρύχωρος και άνετος στη χρήση του, αρκεί να επιλέγουμε έπιπλα που εξυπηρετούν το λειτουργικό τους σκοπό στη δεδομένη θέση. Επιπλέον η κίνηση μέσα σε ένα χώρο καθαρό και τακτοποιημένο μειώνει τα επίπεδα στρες των ενοίκων.

Από το βιβλίο: Furniture arrangement: in Residential spaces
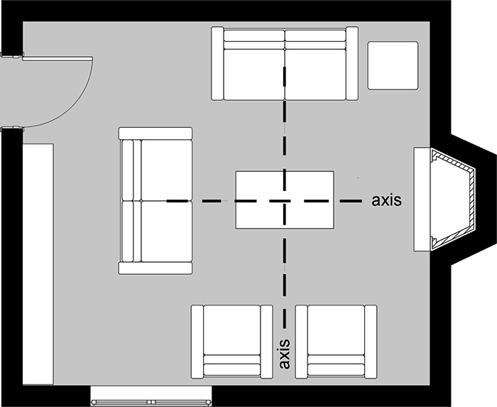
Συμμετρικές και Ασύμμετρες Διατάξεις
Ο καλοσχεδιασμένος χώρος αποπνέει αίσθηση ισορροπίας και αρμονίας, που επιτυγχάνονται με την ορθή χωροθέτηση των επίπλων, λαμβάνοντας υπόψη το μέγεθος και την αναλογία τους. Η ισορροπία επιτυγχάνεται με συμμετρικές και ασύμμετρες διατάξεις. Οι συμμετρικές διατάξεις περιλαμβάνουν την τοποθέτηση παρόμοιων κομματιών εκατέρωθεν ενός κεντρικού σημείου και δημιουργούν μία αίσθηση ηρεμίας και ασφάλειας. Οι ασύμμετρες διατάξεις περιλαμβάνουν τη διάταξη διαφορετικών κομματιών παρόμοιου οπτικού βάρους για την επίτευξη ισορροπίας και μπορούν να δημιουργήσουν ατμόσφαιρα δυναμικότητας και ενεργητικότητας στο χώρο. Πειραματιζόμαστε και με τους δύο τύπους για να επιλέξουμε αυτόν που ταιριάζει καλύτερα στο χώρο μας.

Από το βιβλίο: Furniture arrangement: in Residential spaces
Ορισμός Εστιακών Σημείων στο Σπίτι
Η αποτελεσματική χωροθέτηση προϋποθέτει καθορισμό του εστιακού σημείου του κάθε χώρου, αυτό δηλαδή που έλκει το βλέμμα και την προσοχή με την είσοδο μας σε αυτόν. Κεντρικά σημεία θα μπορούσαν να είναι ένα τζάκι, ένα υπέροχο έργο τέχνης, η θέα μέσα από ένα άνοιγμα, ακόμη και η τηλεόραση. Τοποθετούμε τα έπιπλα ώστε να πλαισιώνουν το κεντρικό σημείο και να το τονίζουν χωρίς να το ανταγωνίζονται, δημιουργώντας μία όμορφη και φιλόξενη ατμόσφαιρα στο χώρο.

https://housedesigner.com/should-your-fireplace-be-a-focal-point/
Ο Ρόλος της Ψυχολογίας στον Εσωτερικό Χώρο
Επειδή το σπίτι μας αποτελεί προέκταση του εαυτού μας, η χωροθέτηση των επίπλων αντανακλά την προσωπικότητα και το στυλ μας. Επιπλέον η επιλογή των επίπλων όσον αφορά το χρώμα και τις υφές τους επηρεάζει τα συναισθήματα μας κατά τη διαβίωση μας μέσα στο χώρο. Για παράδειγμα, οι μπλε και πράσινες αποχρώσεις είναι ηρεμιστικές, οι κόκκινες και κίτρινες είναι διεγερτικές. Τα απαλά, βελουτέ υφάσματα προκαλούν αίσθηση χαλάρωσης, ενώ οι εμφανείς σκληρές, αλλά κομψές επιφάνειες δίνουν ένα περισσότερο επίσημο τόνο στο χώρο.
Ζώνες Χρήσης και Ημερήσιες Λειτουργίες
Ο καθορισμός ζωνών με βάση τις λειτουργίες, γωνιές ανάγνωσης, περιοχή εργασίας, περιοχή συζήτησης, βοηθά το χώρο να φαίνεται τακτοποιημένος, ώστε να μειώνεται η αίσθηση ακαταστασίας και σύγχυσης. Η τοποθέτηση επίπλων κατάλληλων για την κάθε ζώνη υποστηρίζει τη λειτουργία της και ενισχύει τη χρηστικότητα του χώρου και την άνεση μας μέσα σε αυτόν.

Από το βιβλίο: Furniture arrangement: in Residential spaces
Εξατομίκευση και Συναισθηματική Σύνδεση με τον Χώρο
Τέλος, η προσθήκη προσωπικών αντικειμένων στα έπιπλα, όπως φωτογραφίες και αγαπημένα ενθύμια, προσδίδουν μοναδικότητα στο χώρο, ζεστασιά και ενισχύουν τη συναισθηματική σύνδεση με αυτόν. Αν λοιπόν επιθυμούμε ένα λειτουργικό και ευχάριστο χώρο πρέπει να επιδιώξουμε μία σωστή χωροθέτηση επίπλων, κατανοώντας τη σημασία της κυκλοφορίας, της ισορροπίας, των εστιακών σημείων, των λειτουργικών ζωνών και της εξατομίκευσης. Η τέχνη της τοποθέτησης των επίπλων μεταμορφώνει ένα χώρο διαβίωσης σε ένα καταφύγιο ζεστό και οικείο.
Το παρακάτω βιβλίο είναι γεμάτο με χρήσιμες προτάσεις και επαγγελματικές συμβουλές που θα σας βοηθήσουν να δημιουργήσετε εσωτερικούς χώρους με εξαιρετική ροή. Στις σελίδες του, μπορείτε να βρείτε λεπτομερείς διατάξεις δωματίων, έναν πλήρη οδηγό για τους τύπους επίπλων, τις διαστάσεις τους και τον απαιτούμενο ελεύθερο χώρο γύρω τους.

                
                